Flat for sale in London SW1X, 2 Bedroom

London, London, UK

Quick Summary

Property Type:
Flat
Status:
For sale
Price
£ 1,995,000
Beds:
2
Baths:
2
Recepts:
1
County
London
Town
London
Outcode
SW1X
Location
Hans Crescent, London SW1X
Marketed By:
Elegant Homes London
Posted
2024-04-02
SW1X Rating:





More Info?
Please contact Elegant Homes London on 020 8033 8691 or Request Details

Property Description

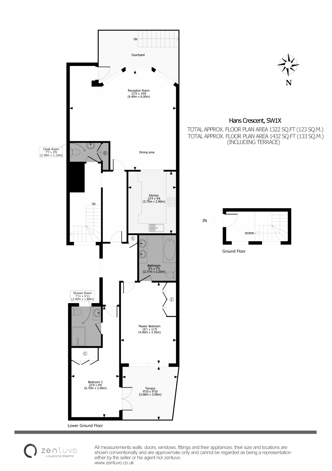
A spacious two bedroom apartment (approximately 1,322 sq ft / 123 sq m) on the lower ground floor of this portered sought after block. The apartment benefits from a large reception room, open plan kitchen, master bedroom suite, second bedroom
and bathroom as well as a private patio at the rear of the building. 10-12 Hans Crescent was the subject of a major renovation project approximately 10 years ago and benefits from a lift and daytime porter (8am until 12 noon) and is situated between Harrods and Sloane Street. Ideally positioned for all the world class amenities that Knightsbridge has to offer and a few minutes from Hyde Park.

Floor Plans

Property Location

Marketed by Elegant Homes London


By submitting this form, you accept our Terms of Use.

Disclaimer Property descriptions and related information displayed on this page are marketing materials provided by Elegant Homes London. estateagents365.uk does not warrant or accept any responsibility for the accuracy or completeness of the property descriptions or related information provided here and they do not constitute property particulars. Please contact Elegant Homes London for full details and further information.