Flat for sale in London N21, 2 Bedroom

London, London, UK

Quick Summary

Property Type:
Flat
Status:
For sale
Price
£ 330,000
Beds:
2
Baths:
1
Recepts:
1
County
London
Town
London
Outcode
N21
Location
Cunard Crescent, Winchmore Hill N21
Marketed By:
Craigs Estate Agents
Posted
2018-10-23
N21 Rating:





More Info?
Please contact Craigs Estate Agents on 020 3641 4200 or Request Details

Property Description

Price…£330,000…leasehold

entrance: Communal entrance via entry phone, stairs rising to the first floor, front door to:

Hallway: Fitted carpet, radiator, airing cupboard housing Worcester boiler, entry phone, feature alcove, door to:

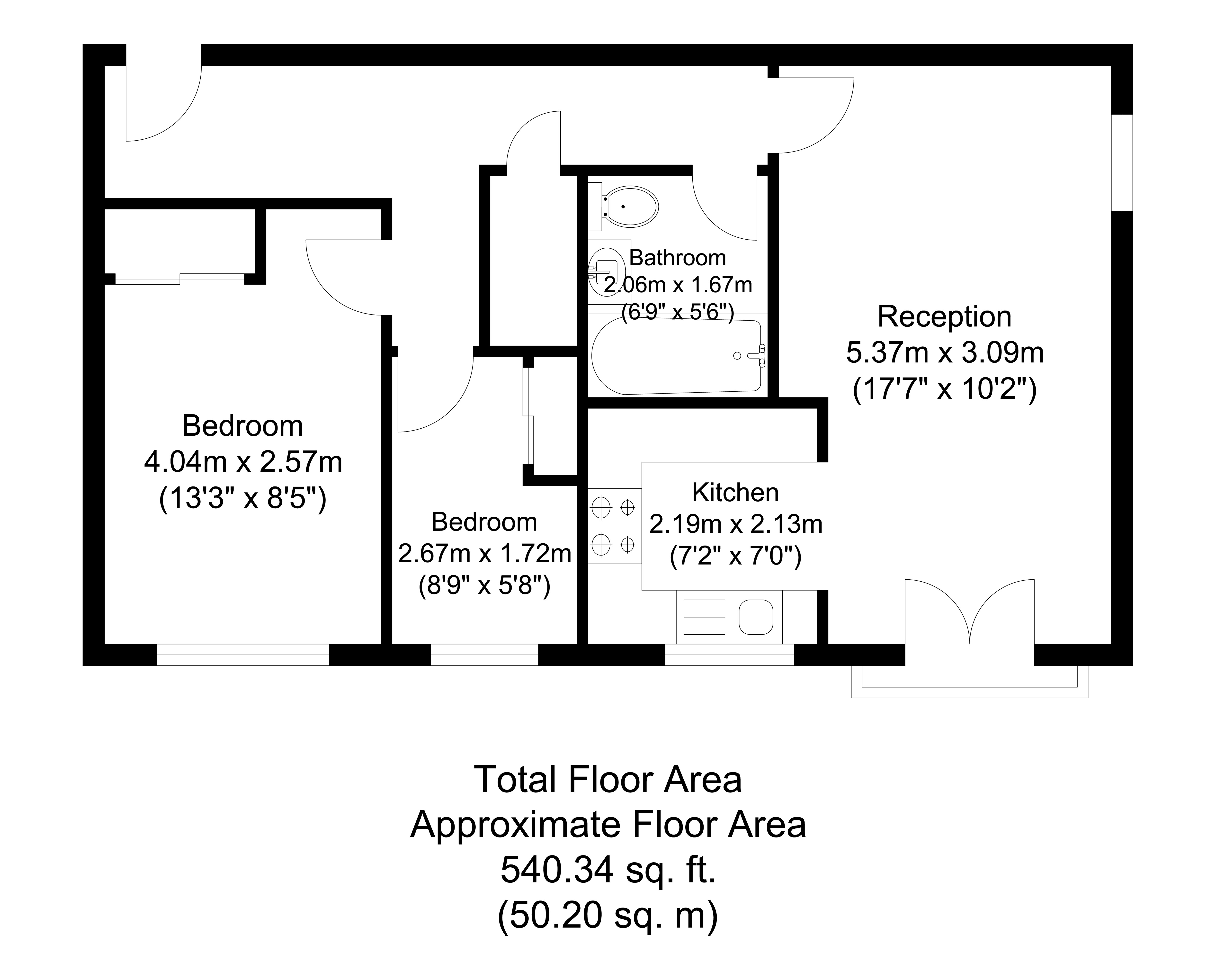
Lounge: (18’ x 10’3) Double glazed double doors opening onto a Juliet balcony with wonderful views of the new river and the communal gardens to the rear, fitted carpet, two radiators, double glazed window to the side, coving to ceiling, archway to:

Kitchen: (7’2 x 7’1) Fitted units at base and eye levels, sink and drainer unit with mixer tap, integrated washing machine, dishwasher and fridge/freezer, fitted oven and hob, vinyl flooring, part tiled walls, double glazed window to rear aspect overlooking the communal gardens and the new river.

Bedroom 1: (13’3 x 8’4) Double glazed window to rear aspect overlooking the communal gardens and the new river, fitted wardrobe, fitted carpet, radiator, coving to ceiling.

Bedroom 2: (11’6 x 10’) Double glazed window to rear aspect, overlooking the communal gardens and the new river, fitted carpet, radiator, fitted wardrobe.

Bathroom: Three piece suite comprising pedestal wash hand basin, panelled bath with mixer tap and shower attachment, tiled walls, fitted carpet, radiator.

Exterior: Very well kept communal gardens all around the block backing onto the new river. Barbeque areas and allocated parking. Plenty of Visitors parking spaces also..

The agent has not tested any apparatus, equipment, fixtures and fittings or services and so cannot verify that they are in working order or fit for the purpose. A buyer is advised to obtain verification from their solicitor or surveyor

Floor Plans

Property Location

Marketed by Craigs Estate Agents


By submitting this form, you accept our Terms of Use.

Disclaimer Property descriptions and related information displayed on this page are marketing materials provided by Craigs Estate Agents. estateagents365.uk does not warrant or accept any responsibility for the accuracy or completeness of the property descriptions or related information provided here and they do not constitute property particulars. Please contact Craigs Estate Agents for full details and further information.