Flat for sale in London E9, 2 Bedroom

London, London, UK

Quick Summary

Property Type:
Flat
Status:
For sale
Price
£ 400,000
Beds:
2
County
London
Town
London
Outcode
E9
Location
Kenworthy Road, London E9
Marketed By:
Hunters - Stoke Newington
Posted
2018-11-12
E9 Rating:





More Info?
Please contact Hunters - Stoke Newington on 020 3478 3603 or Request Details

Property Description

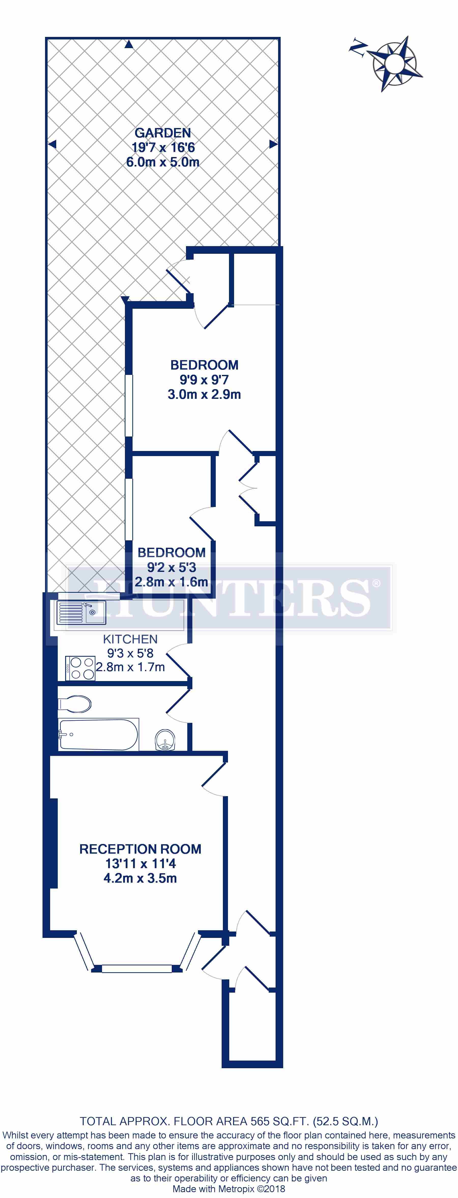
Requiring complete refurbishment throughout this charming and well proportioned two bedroom flat boasts over 550sq ft of accommodation, own entrance and sole use of garden. Available to the market chain free the property comprises, reception room, separate kitchen, master bedroom, guest bedroom and bathroom. Kenworthy Road is a popular residential street located moments from the many bars, restaurants and coffee houses of Chatsworth Road and a short walk from the wide open spaces of Victoria Park. Transport links include, Homerton Station (Overground) and a variety of Bus routes into The City and West End.

Floor Plans

Property Location

Marketed by Hunters - Stoke Newington


By submitting this form, you accept our Terms of Use.

Disclaimer Property descriptions and related information displayed on this page are marketing materials provided by Hunters - Stoke Newington. estateagents365.uk does not warrant or accept any responsibility for the accuracy or completeness of the property descriptions or related information provided here and they do not constitute property particulars. Please contact Hunters - Stoke Newington for full details and further information.