Flat for sale in Glasgow G44, 2 Bedroom

Glasgow, Glasgow, UK

Quick Summary

Property Type:
Flat
Status:
For sale
Price
£ 125,000
Beds:
2
Baths:
2
Recepts:
1
County
Glasgow
Town
Glasgow
Outcode
G44
Location
Old Castle Gardens, Flat 3/2, Cathcart, Glasgow G44
Marketed By:
Clyde Property, Shawlands
Posted
2024-04-20
G44 Rating:





More Info?
Please contact Clyde Property, Shawlands on 0141 376 9406 or Request Details

Property Description

A bright and spacious immaculately presented top floor apartment situated within a popular modern development in Cathcart. The property is in superb order throughout and features a recently refitted modern kitchen, ensuite, double glazing, gas central heating, secure door entry, and residents parking. Sure to appeal to a broad sector of the market, this fantastic modern apartment comprises; communal stairwell entered through a security entry system, welcoming reception hallway with two storage cupboards off, a bright principal lounge with open aspect and Juliet style balcony, recently refitted stunning modern galley style fitted kitchen with ample space for a small table and chairs, master bedroom with integrated wardrobes and attractive en suite shower room, good sized second double bedroom again with built in wardrobes and well appointed bathroom with three piece suite. EER Rating C

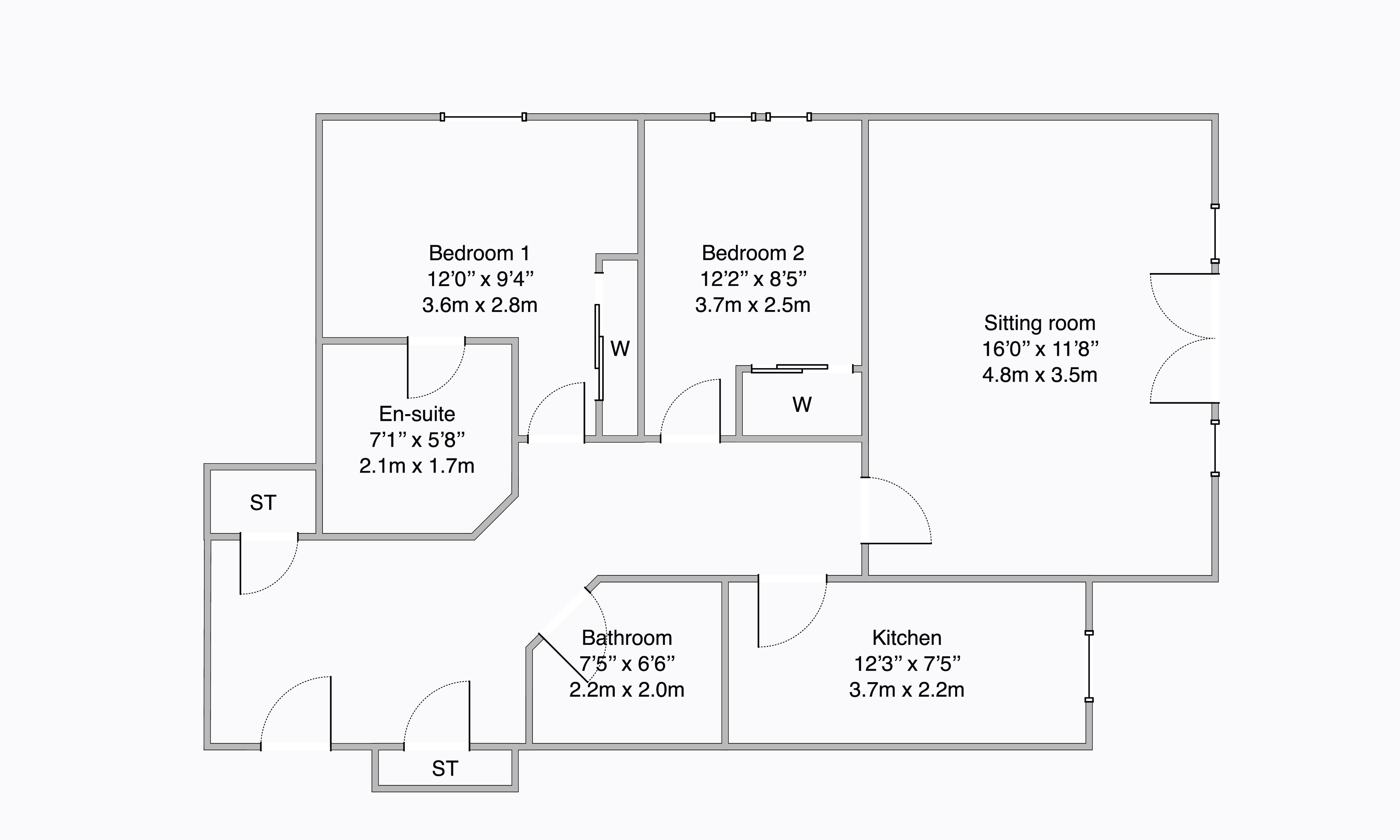
Floor Plans

Property Location

Marketed by Clyde Property, Shawlands


By submitting this form, you accept our Terms of Use.

Disclaimer Property descriptions and related information displayed on this page are marketing materials provided by Clyde Property, Shawlands. estateagents365.uk does not warrant or accept any responsibility for the accuracy or completeness of the property descriptions or related information provided here and they do not constitute property particulars. Please contact Clyde Property, Shawlands for full details and further information.