Flat for sale in Glasgow G40, 2 Bedroom

Glasgow, Glasgow, UK

Quick Summary

Property Type:
Flat
Status:
For sale
Price
£ 80,000
Beds:
2
Baths:
1
Recepts:
1
County
Glasgow
Town
Glasgow
Outcode
G40
Location
Mill Street 1/2, Bridgeton G40
Marketed By:
Scottish Property Centre
Posted
2024-04-13
G40 Rating:





More Info?
Please contact Scottish Property Centre on 0141 433 6644 or Request Details

Property Description

The selling agents are delighted to present to the market area this attractive modern two bedroom first floor flat in the popular Bridgeton area opposite the picturesque Glasgow Green.

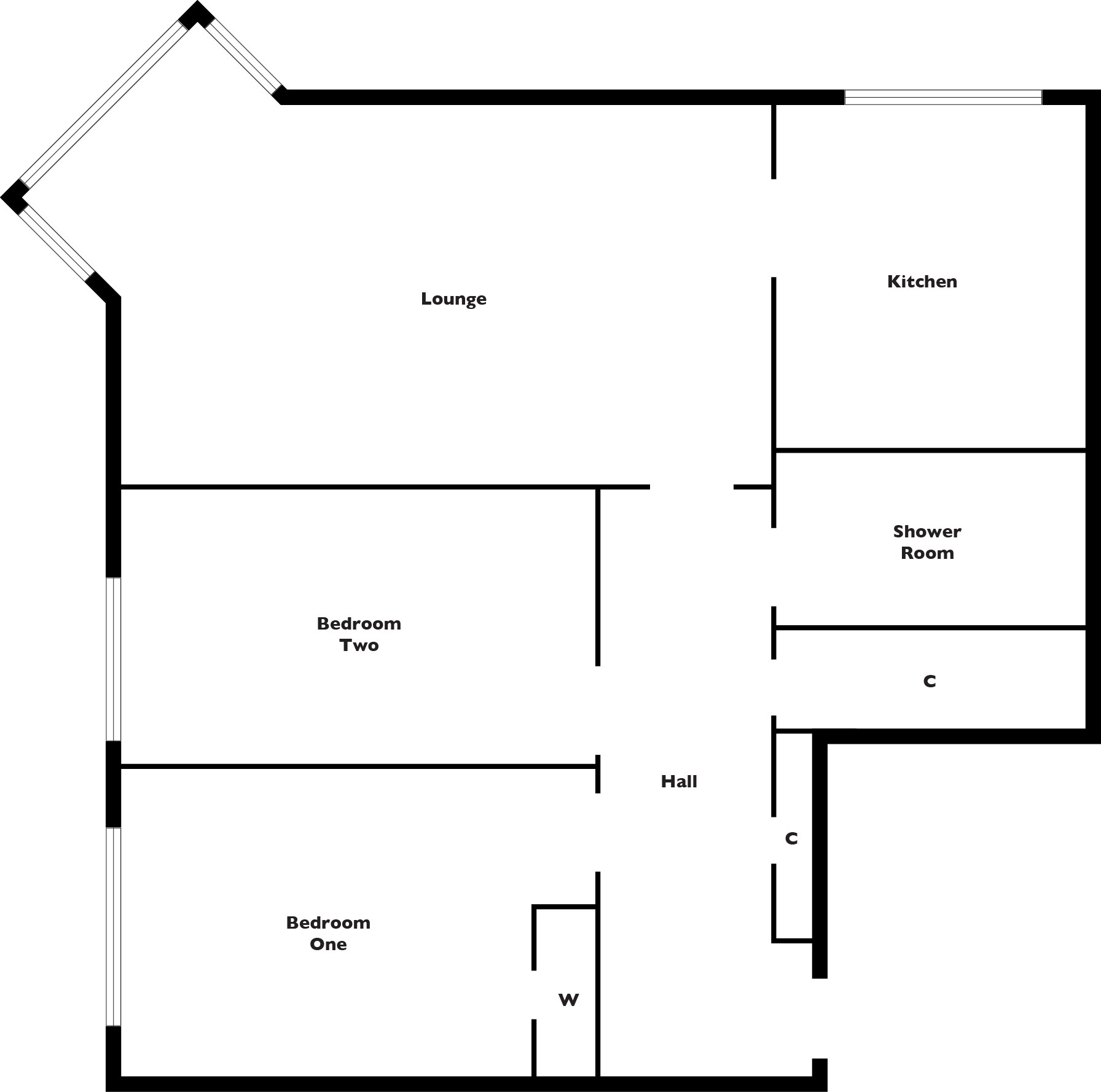
The accommodation comprises hall, spacious lounge with large corner bay window enjoying a fabulous outlook over Glasgow Green, good size fitted kitchen, two double bedrooms and shower room. The property benefits from electric storage and panel heaters, double glazing, walk in storage cupboard, communal rear garden and parking adjacent.

The property is situated close to local shops and public transport routes on Main Street, Bridgeton. There are excellent road networks within the area including the M8 and M74 motorways within a mile or so making it an ideal location for commuters to the central belt. The area is also well served by good local primary and secondary schools.


Council tax


Glasgow City Council band C.


Energy performance rating


The epr on the property is C.


Home report


The Home Report can be emailed on request.


Mortgage finance


Scottish Property Centre has an alliance with spc Finance, a brokerage with a bespoke approach to funding. Through their relationships with retail, commercial and private banks they can assist with securing a mortgage to suit your circumstances. For further information contact Robert Hendry, Andrew o’Leary or Nicola Marsden based in our Glasgow office, on .

Lounge (5.82m x 3.25m)

Kitchen (2.99m x 2.71m)

Bedroom 1 (4.32m x 2.68m)

Bedroom 2 (4.25m x 2.32m)

Bathroom (2.39m x 1.63m)

Floor Plans

Property Location

Marketed by Scottish Property Centre


By submitting this form, you accept our Terms of Use.

Disclaimer Property descriptions and related information displayed on this page are marketing materials provided by Scottish Property Centre. estateagents365.uk does not warrant or accept any responsibility for the accuracy or completeness of the property descriptions or related information provided here and they do not constitute property particulars. Please contact Scottish Property Centre for full details and further information.