Flat for sale in E15, 2 Bedroom

, , UK

Quick Summary

Property Type:
Flat
Status:
For sale
Price
£ 485,000
Beds:
2
Baths:
2
County
Town
Outcode
E15
Location
Cooks Road, City Court Legacy Wharf, Stratford E15
Marketed By:
Martin & Co Stratford
Posted
2019-01-13
E15 Rating:





More Info?
Please contact Martin & Co Stratford on 020 8022 6331 or Request Details

Property Description

General specifications *Concierge service
*lift to all floors
*On site gymnasium
*Communal gardens Key talking points about Stratford area

University College London East (ucl east)
University College London is building a new second campus spread across 4.63 hectares in Stratford.
Ucl East will be located on the Olympic Park with closest stations being Pudding Mill Lane & Stratford stations. Phase 1 will house 3000 students and 625 employees.

London College of Fashion (lcf)
lcf will relocate from its various campuses to one centralised location in the Olympic Park. It will house 5,500 fashion students and some 500 staff.
The scheme is expected to deliver 3,000 jobs, 1.5 million additional visitors and £2.8 billion of economic value to Stratford and the surrounding area.

Queen Elizabeth Olympic Park & Stadium
560-acre open space comprising parkland, meadows, fields and gardens & Olympic stadium is home to West Ham United, Zaha Hadid's London Aquatics Centre is open to the public, and the Olympic Velodrome, now Lee Valley VeloPark, was first in the world to offer track cycling, road racing, bmx and mountain biking in one place.

Westfield Stratford City
One of the largest shopping malls in Europe with 350 stores, restaurants and cinema set over three floors .

International Quarter London
This £2.4 billion site is already the home of Transport for London, Cancer Research UK, the British Council and the Financial Conduct Authority which in total employ some 50,000 people.

This is a reassignment sale, therefore is a cash purchase of the original contract. The buyer will require cash funding to complete the purchase, with a mortgage available 6 month prior to completion with the developer.

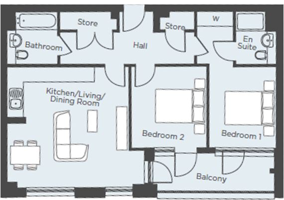
Kitchen / living / dining 18' 6" x 16' 9" (5.64m x 5.11m) *Built in appliances including A+ rated fridge freezer
*Integrated multi-function oven with steam bake
*Soft close mechanism to all drawers and doors
*handle less wall units
*Featured LED lighting to underside of wall units
*Laminated wood flooring

bathroom *Contemporary white bath with thermostatic shower
*Tiled upstand with full height mirror
*Tiled walls around bath and shower
*WC with soft closing seat and lid

ensuite *Rectangular shower tray with sliding door and thermostatic shower
*Full height Mirror above upstand
*Soft close seat and lid to WC
*Tiled walls around shower
*Space for cabinet

bedroom 1 18' 9" x 9' 0" (5.72m x 2.74m) *Carpets
*Door to balcony

bedroom " 11' 2" x 10' 2" (3.4m x 3.1m) *Carpets
*Door to balcony

fi xtures & fittings *Polished chrome levers to all internal doors
*Video door entry system
*Tv outlets to receive digital / freeview and Sky Q
*Hyperoptic superfast broadband & BT sockets in the master bedroom
*Smoke detectors

Floor Plans

Property Location

Marketed by Martin & Co Stratford



By submitting this form, you accept our Terms of Use.

Disclaimer Property descriptions and related information displayed on this page are marketing materials provided by Martin & Co Stratford. estateagents365.uk does not warrant or accept any responsibility for the accuracy or completeness of the property descriptions or related information provided here and they do not constitute property particulars. Please contact Martin & Co Stratford for full details and further information.