Farmhouse for sale in Leeds LS25, 4 Bedroom

Leeds, Leeds, UK

Quick Summary

Property Type:
Farmhouse
Status:
For sale
Price
£ 500,000
Beds:
4
Baths:
2
Recepts:
2
County
West Yorkshire
Town
Leeds
Outcode
LS25
Location
Chapel Street, Hillam, Leeds LS25
Marketed By:
Emsleys
Posted
2024-05-01
LS25 Rating:





More Info?
Please contact Emsleys on 01977 308925 or Request Details

Property Description

Guide price £500,000 - £525,000.
***rare opportunity - enviable sought after location - stunning family cottage.***
An amazing Grade II listed family home set in the conservation area of Hillam. Having a superb plot with ample parking, a delightful well maintained garden, a detached outbuilding having an under cover open fronted double parking area and store. The property itself briefly comprises; entrance porch, breakfast kitchen, two reception rooms, utility room and WC. The first floor level has four well appointed bedrooms with the master having an en-suite bathroom and a shower room serving the remaining three bedrooms. An array of charming features throughout, from beams to ceilings to feature fireplaces. Gas central heated with ample parking for several vehicles.
Easy access to Leeds/York and Selby and the major motorway networks M62/A1/M1 within minutes.
Overall a fantastic four bedroom detached family home which rarely become available to market in the village of Hillam and will prove to be an incredibly popular choice.
Call now 24 hours a day, 7 days a week to arrange your viewing.

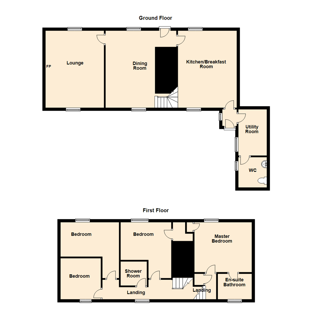
Ground Floor

Entrance Porch

Having a timber single-glazed entrance door, single-glazed window, tiled floor, door to the utility room and door, with step, to the breakfast kitchen.

Utility Room (3.18m x 2.01m (10'5" x 6'7"))

Having a base unit with sink and drainer with work surface and space below for tumble dryer, washing machine and further space for a fridge/freezer. Wall mounted combi-boiler, tiled flooring, down lighters to the ceiling, extractor, single-glazed window overlooking the rear garden and door to the WC.

Wc (2.16m x 2.08m (7'1" x 6'10"))

Low flush WC, pedestal wash hand basin, double panelled central heating radiator, down lighters to the ceiling and single-glazed window over looking the garden.

Breakfast Kitchen (5.18m x 4.04m (17'0" x 13'3"))

Having a range of light wood effect wall and base units with co-ordinating work surfaces, complimentary splashback tiling and a one and a half bowl sink and drainer. Space and recess for a 'range style' oven with a concealed extractor. Wood flooring, double panelled central heating radiator, window seat to the single-glazed recessed window overlooking the front aspect and a further single-glazed window to the rear aspect. Door to the dining room/reception room.

Dining Room/Reception Room (5.41m x 3.40m plus recess accessing breakfast kitc)

With a superb feature exposed brick fireplace with a raised hearth and oak sleeper mantle. Oak beams to the ceiling, double panelled central heating radiator, single-glazed window to the rear aspect, window seat to the single-glazed recesssed window overlooking the front aspect and door to the lounge.

Lounge (4.01m x 5.31m (13'2" x 17'5"))

Recessed exposed brick fireplace with a cast-iron multi-fuel effect gas fire. Feature beams to the ceiling, double panelled central heating radiator and window seats to the single-glazed recessed windows overlooking the front and rear aspects.

First Floor

First Landing

Having a split landing with stairs accessing both, storage cupboard, double panelled central heating radiator and window seat to recessed single-glazed window overlooking the front aspect.

Master Bedroom (3.81m x 3.43m (12'6" x 11'3"))

Having a latch timber door accessing a storage area, oak feature beam to the ceiling, double panelled central heating radiator, recessed single-glazed window and door accessing en-suite bathroom.

En-Suite Bathroom (2.34mx 1.68m (7'8"x 5'6"))

Comprising; straight panelled bath with a shower over, tiling to the half-way point but being fully tiled over the shower area, pedestal wash hand basin and low flush WC. Single panelled central heating radiator, wood effect 'white wash' 'Cushionfloor' flooring, extractor fan and feature beam to the ceiling.

Second Landing

Window seat to recessed single-glazed window and doors accessing all rooms.

Bedroom (3.81minto door recess x 3.51m (12'6"into door rece)

Window seat with single-glazed window to the front aspect, double panelled central heating radiator, feature beams to the ceiling and a latch wood door providing a wardrobe storage area.

Bedroom (3.84minto door recess x 3.71m (12'7"into door rece)

Feature beams, double panelled central heating radiator and window seat to recessed single-glazed window to the front aspect.

Bedroom (2.82m x 2.77m (9'3" x 9'1"))

Beams to the ceiling, double panelled central heating radiator, laminate wood effect 'Cushion flooring' and single-glazed window to the rear aspect.

Shower Room (1.65m x 1.75m (5'5" x 5'9"))

Large fully tiled single shower enclosure with pedestal wash hand basin and low flush WC, half tiled walls, single panelled central heating radiator, beams to the ceiling, extractor fan and shaver point.

Exterior

The property is set off the main road with a pebbled drive which gives ample parking and sweeps around providing parking for approximately 4/5 cars and leading to the double opening open access garage area which also has a lockable side store room/workshop. The laid lawn area is well maintained with a flagged patio, surrounding bedding borders, plants and trees and an outside storage room attached to the side of the building.

Directions

From our Sherburn In Elmet office, turn left onto Low Street and continue out of the village and into South Milford. Continue through the village to a main roundabout (A162). Take the second exit onto Lumby Lane and follow the road for approximately one mile. Just after going over a railway bridge at the 't'-junction, turn left and continue through the village of Monk Fryston. Opposite Monk Fryston Hall which is on the left, as the road bends around to the right and then left, near the post office, turn right onto Water Lane and continue into Hillam, where the road becomes Main Street . At The Square opposite the 'Cross Keys' Inn turn left onto Chapel Street where the property can be found on the right hand side.

Floor Plans

Property Location

Marketed by Emsleys



By submitting this form, you accept our Terms of Use.

Disclaimer Property descriptions and related information displayed on this page are marketing materials provided by Emsleys. estateagents365.uk does not warrant or accept any responsibility for the accuracy or completeness of the property descriptions or related information provided here and they do not constitute property particulars. Please contact Emsleys for full details and further information.