End terrace house to rent in Pontypridd CF37, 4 Bedroom

Pontypridd, Pontypridd, UK

Quick Summary

Property Type:
End terrace house
Status:
To rent
Price
£ 138
Beds:
4
Baths:
1
Recepts:
1
County
Rhondda Cynon Taff
Town
Pontypridd
Outcode
CF37
Location
Telekebir Road, Hopkinstown, Pontypridd CF37
Marketed By:
Hoskins Johnson
Posted
2018-09-18
CF37 Rating:





More Info?
Please contact Hoskins Johnson on 01443 719144 or Request Details

Property Description

*** four bedrooms *** end terraced family home ***
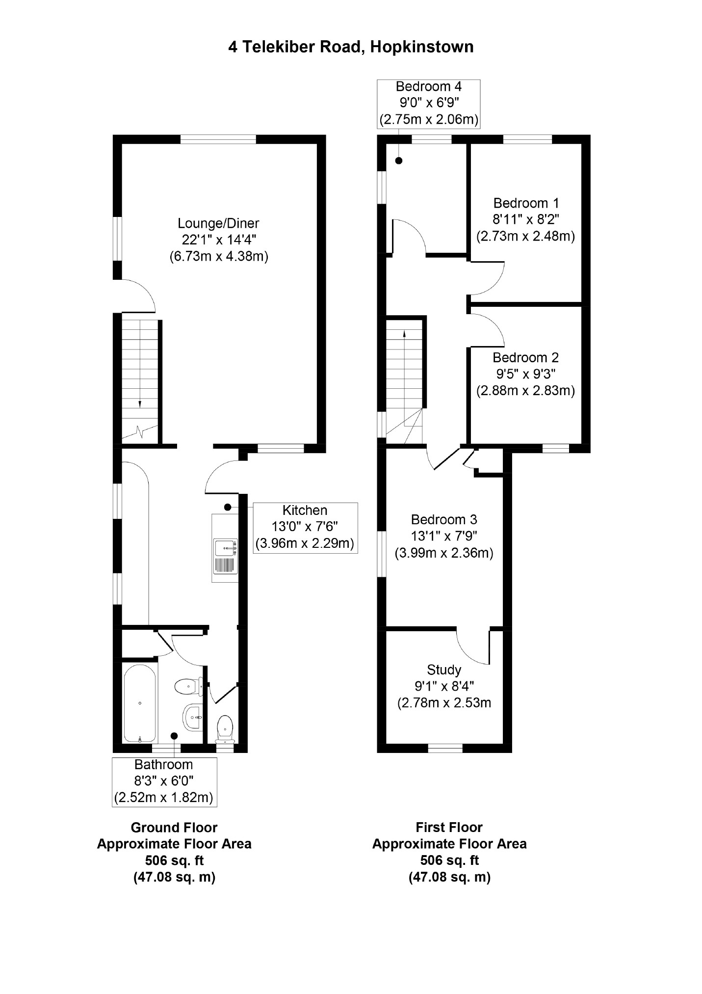
Good size family home comprises of lounge/diner, kitchen, bathroom/wc, second wc, four bedrooms and study.
There is a courtyard garden with lane access together with double glazing and gas combi central heating.
Located in the popular village of Hopkinstown within walking distance of local shop and school and within minutes of Pontypridd Town Centre.
Viewing recommended.

Entrance

Double glazed entrance door, laminated wood flooring.

Lounge/Diner (6.73 x 4.38 max 3.47 min (22'1" x 14'4" max 11'5" min))

Double glazed windows to front, side and rear allowing plenty of natural light, two radiators, laminated wood flooring, fireplace with flame effect electric fire.

Kitchen (3.96 x 2.29 (13'0" x 7'6"))

Fitted with base and wall cupboards, stainless steel sink unit, electric cooker point, space for washing machine, understairs storage recess, tiled floor, two double glazed windows to side.

Rear Lobby

Tiled floor.

Bathroom/Wc

White three piece suite comprising of panelled bath with mains shower, wc, wash hand basin, part tiled walls, tiled floor, radiator, storage cupboard, double glazed window to rear.

Second Wc

WC, part tiled walls, tiled floor, double glazed window to rear.

First Floor Landing

Double glazed window to side, attic access.

Bedroom 1 (3.73 x 2.48 (12'3" x 8'2"))

Double glazed window to front, radiator.

Bedroom 2 (2.88 x 2.83 (9'5" x 9'3"))

Double glazed window to rear, radiator.

Bedroom 3 (3.99 x 2.36 (13'1" x 7'9"))

Double glazed window to side, radiator, laminated wood flooring, storage cupboard, wall mounted gas combi boiler, access to study.

Study (2.78 x 2.53 (9'1" x 8'4"))

Possibility of converting to an en-suite bathroom. Double glazed window to rear, radiator.

Bedroom 4 (2.75 x 2.06 (9'0" x 6'9"))

Double glazed windows to front and side, radiator, laminated wood flooring.

Outside

Paved courtyard providing outdoor seating area with lane access.

You may download, store and use the material for your own personal use and research. You may not republish, retransmit, redistribute or otherwise make the material available to any party or make the same available on any website, online service or bulletin board of your own or of any other party or make the same available in hard copy or in any other media without the website owner's express prior written consent. The website owner's copyright must remain on all reproductions of material taken from this website.

Floor Plans

Property Location

Marketed by Hoskins Johnson



By submitting this form, you accept our Terms of Use.

Disclaimer Property descriptions and related information displayed on this page are marketing materials provided by Hoskins Johnson. estateagents365.uk does not warrant or accept any responsibility for the accuracy or completeness of the property descriptions or related information provided here and they do not constitute property particulars. Please contact Hoskins Johnson for full details and further information.