End terrace house to rent in London NW10, 5 Bedroom

London, London, UK

Quick Summary

Property Type:
End terrace house
Status:
To rent
Price
£ 1,100
Beds:
5
Baths:
3
Recepts:
2
County
London
Town
London
Outcode
NW10
Location
Kings Road, London NW10
Marketed By:
Winkworth - Kensal Rise & Queen's Park
Posted
2024-04-03
NW10 Rating:





More Info?
Please contact Winkworth - Kensal Rise & Queen's Park on 020 8115 7063 or Request Details

Property Description

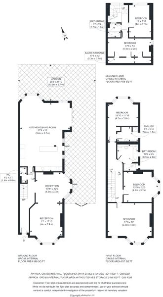
This end of terrace period property features a beautiful opening entering into double reception room and then to the rear a fully fitted open plan kitchen dining room with bi- folding doors leading to a private garden. The first floor contains three double bedrooms, one of which is a self-contained studio with en-suite shower room and a family bathroom. The third floor benefits from a further two bedrooms and a modern bathroom.

Additional features include a separate washer and dryer in the self-contained studio, side access to the garden, elegant double reception room with stripped wooden floors and high ceilings and can be offered unfurnished or part furnished.

Council Tax: Brent band E

Location:
Located close to Willesden Green Station (Jubilee Line) you have access to all the local amenities includes shops, cafes and restaurants.


Floor Plans

Property Location

Marketed by Winkworth - Kensal Rise & Queen's Park


By submitting this form, you accept our Terms of Use.

Disclaimer Property descriptions and related information displayed on this page are marketing materials provided by Winkworth - Kensal Rise & Queen's Park. estateagents365.uk does not warrant or accept any responsibility for the accuracy or completeness of the property descriptions or related information provided here and they do not constitute property particulars. Please contact Winkworth - Kensal Rise & Queen's Park for full details and further information.