End terrace house for sale in Staines TW18, 3 Bedroom

Staines, Staines, UK

Quick Summary

Property Type:
End terrace house
Status:
For sale
Price
£ 375,000
Beds:
3
County
Surrey
Town
Staines
Outcode
TW18
Location
Staines-Upon-Thames, Surrey TW18
Marketed By:
Chancellors - Staines
Posted
2024-04-02
TW18 Rating:





More Info?
Please contact Chancellors - Staines on 01784 335920 or Request Details

Property Description

Property Description

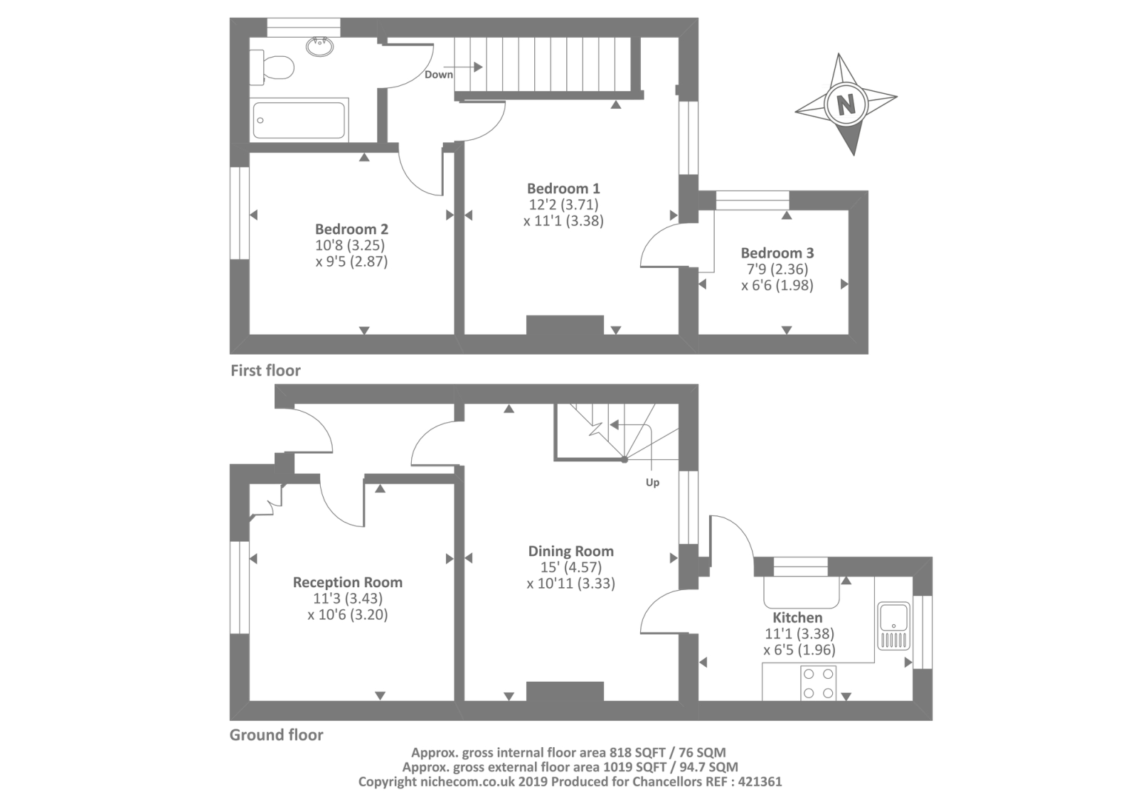
Boasting three bedrooms and two separate reception rooms, this is a well presented character property with the added benefit of a private rear garden

Floor Plans

Property Location

Marketed by Chancellors - Staines


By submitting this form, you accept our Terms of Use.

Disclaimer Property descriptions and related information displayed on this page are marketing materials provided by Chancellors - Staines. estateagents365.uk does not warrant or accept any responsibility for the accuracy or completeness of the property descriptions or related information provided here and they do not constitute property particulars. Please contact Chancellors - Staines for full details and further information.