End terrace house for sale in Pontypool NP4, 2 Bedroom

Pontypool, Pontypool, UK

Quick Summary

Property Type:
End terrace house
Status:
For sale
Price
£ 99,950
Beds:
2
Baths:
1
Recepts:
1
County
Torfaen
Town
Pontypool
Outcode
NP4
Location
St. Johns Crescent, Wainfelin, Pontypool NP4
Marketed By:
Wayman & Co
Posted
2018-10-23
NP4 Rating:





More Info?
Please contact Wayman & Co on 01495 522928 or Request Details

Property Description

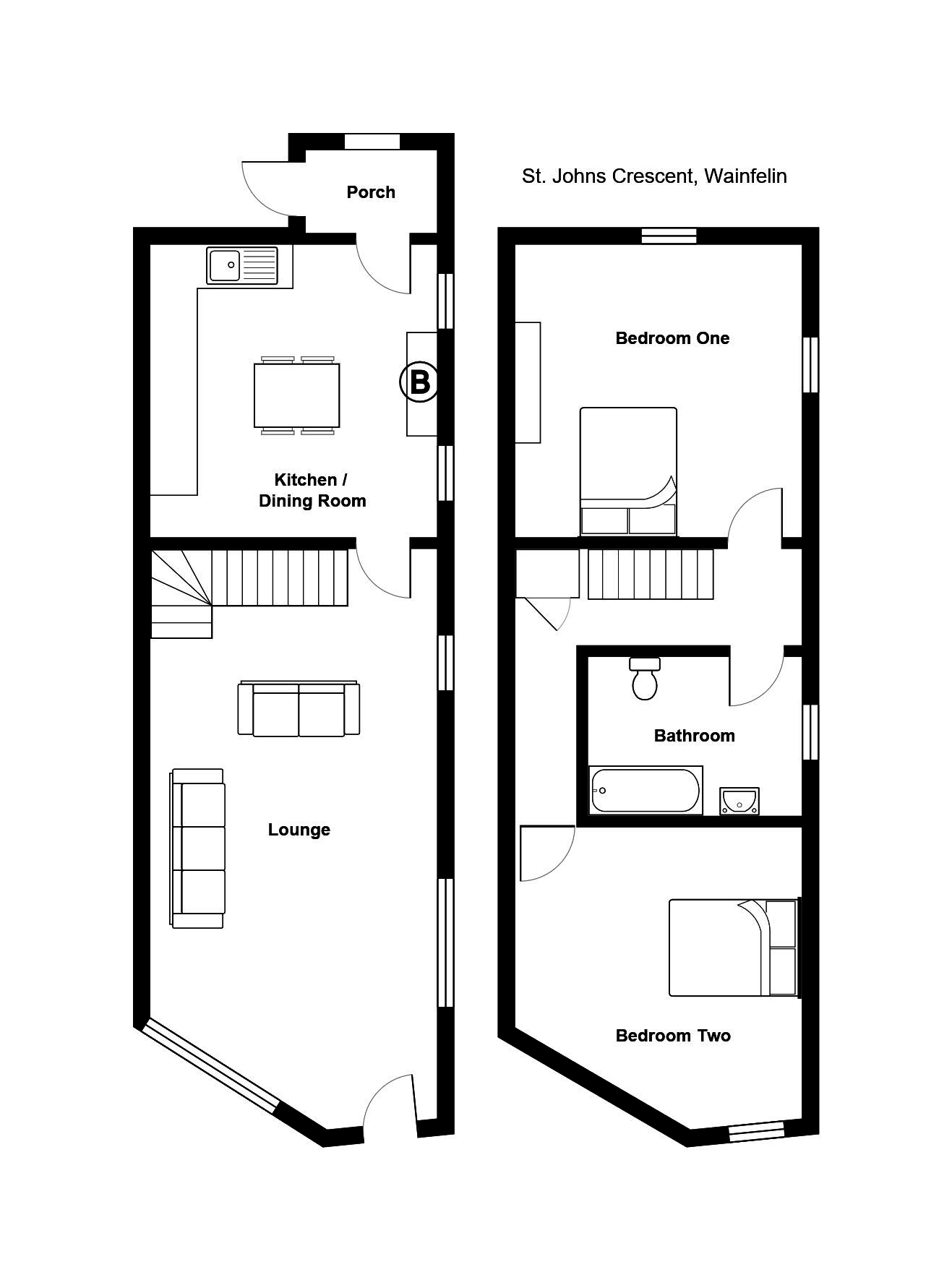
Located in Wainfelin, Pontypool this unusually shaped house offers spacious living accommodation and good road links to Pontypool, Cwmbran Town and the M4 motorway. The accommodation offers large open lounge, spacious kitchen/dining room, first floor bathroom and two double bedrooms. The house has an enclosed rear garden, a gas central heating combination boiler and double glazing. Offered for sale with no onward chain this would make an ideal first time purchase.

Lounge 12' 11" x 25' 10" max 21' 6" min (3.94m x 7.89m max 6.56m min) UPVC entrance door, double glazed window to front aspect, two double glazed windows to side aspects, coved and painted finish to ceiling, papered and painted finish to walls, stairs leading to first floor accommodation, door leading to kitchen. Dining room.

Kitchen/dining room 12' 11" x 13' 3" (3.96m x 4.05m) Two double glazed windows to side aspect, painted finish to ceiling, base and wall units, stainless steel single drainer dink, plumbing for automatic washing machine and dishwasher, wall mounted gas central heating combination boiler, radiator.

Rear porch Window to rear aspect, UPVC door leading to rear garden.

Landing Store cupboard.

Bedroom one 12' 11" x 13' 3" (3.96m x 4.05m) Double glazed windows to side and rear aspect with lovely views, coved and textured finish to ceiling, papered and painted finish to walls, radiator.

Bedroom two 13' 4" max x 14' 9" max (4.08m max x 4.51m max) Double glazed widow to front aspect, coved and panted finish to ceiling, papered and painted finish to walls, radiator.

Bathroom 9' 10" x 7' 2" (3.00m x 2.20m) Double glazed window with obscured glass to side aspect, textured finish to ceiling, tiled and papered finish to walls, low level WC pedestal wash hand basin, panel bath with electric shower rover and shower screen, radiator.

Enclosed patio garden Rear garden with pebbles and side access, enclosed with wall boundaries.

Floor Plans

Property Location

Marketed by Wayman & Co


By submitting this form, you accept our Terms of Use.

Disclaimer Property descriptions and related information displayed on this page are marketing materials provided by Wayman & Co. estateagents365.uk does not warrant or accept any responsibility for the accuracy or completeness of the property descriptions or related information provided here and they do not constitute property particulars. Please contact Wayman & Co for full details and further information.