End terrace house for sale in Motherwell ML1, 2 Bedroom

Motherwell, Motherwell, UK

Quick Summary

Property Type:
End terrace house
Status:
For sale
Price
£ 80,000
Beds:
2
Baths:
1
Recepts:
1
County
North Lanarkshire
Town
Motherwell
Outcode
ML1
Location
Burnside Road, Newarthill, Motherwell ML1
Marketed By:
YOPA
Posted
2018-09-21
ML1 Rating:





More Info?
Please contact YOPA on 01322 584475 or Request Details

Property Description



Presented to the market in immaculate condition is this two bedroom end terraced villa set within a popular residential area of Newarthill near Motherwell.

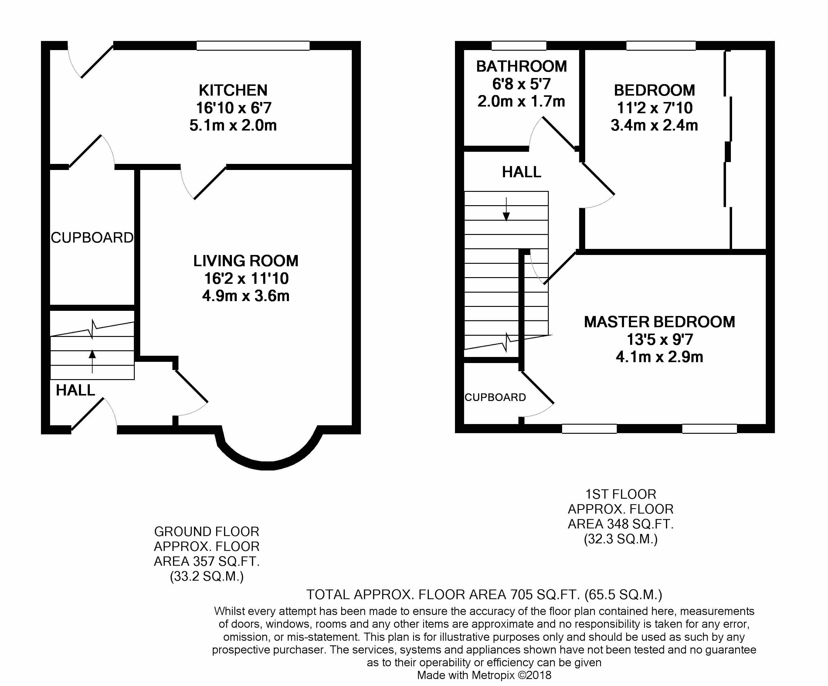
The property offers accommodation formed over two levels consisting of an entrance hall, living room which benefits from a large window allowing plentiful amounts of natural light in making it feel bright and spacious, a modern gloss kitchen with integrated appliances, recessed lighting and led lights under the units with a large walk-in cupboard and access to the back garden.

The upper floor gives access to two double bedrooms with the master having dual aspect windows making it feel large and airy and also benefits from a walk in cupboard, the second bedroom has large fitted mirrored wardrobes incorporating hanger rails and shelves and the modern, fully tiled bathroom with electric shower completes the accommodation. There is access to the loft space from the upper landing.

Features of the property include gas central heating, double glazing throughout, a low maintenance back garden and the opportunity to purchase the land to the side from the local council which could be used as a driveway or a garage.

Newarthill lies to the North of Motherwell, a great commuter area serving the whole of central Scotland with good road networks including the M8 and M74 motorways nearby. There is also a local train station not far from the property, within walking distance. Good amenities and facilities are close by, including an excellent 18 hole golf course and new leisure complex, recently opened Motherwell college, excellent schools to both Primary and secondary levels and a great variety of shops and retail parks.

Floor Plans

Property Location

Marketed by YOPA


By submitting this form, you accept our Terms of Use.

Disclaimer Property descriptions and related information displayed on this page are marketing materials provided by YOPA. estateagents365.uk does not warrant or accept any responsibility for the accuracy or completeness of the property descriptions or related information provided here and they do not constitute property particulars. Please contact YOPA for full details and further information.