End terrace house for sale in Ilfracombe EX34, 4 Bedroom

Ilfracombe, Ilfracombe, UK

Quick Summary

Property Type:
End terrace house
Status:
For sale
Price
£ 315,000
Beds:
4
Baths:
3
Recepts:
2
County
Devon
Town
Ilfracombe
Outcode
EX34
Location
Coburg Terrace, Ilfracombe EX34
Marketed By:
Bond Oxborough Phillips - Ilfracombe Sales
Posted
2024-04-01
EX34 Rating:





More Info?
Please contact Bond Oxborough Phillips - Ilfracombe Sales on 01271 320166 or Request Details

Property Description

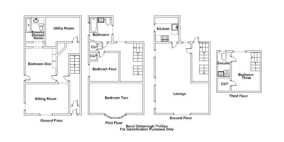
A charming 4 bedroom period property with views of Ilfracombe harbour, Capstone and Hillsborough. Situated on the historic Fore Street, just a stone's throw away from local amenities, is a four bedroom end terrace which is conveniently configured with a self-contained one bedroom annex. The accommodation comprises an annex with bedroom, sitting room, ensuite shower room and utility room (which could be easily converted to a kitchen) and also three bedrooms, two bathrooms, kitchen and triple aspect lounge. The property boasts period features such as ceiling roses and ceiling cornicing, gas central heating and a large garden. Bond Oxborough Phillips highly recommend an internal viewing to fully appreciate what is on offer.Ilfracombe is an historic Victorian seaside resort and provides shopping facilities as well as other amenities such as Banks, Library, Post Office, Schools and Cinema etc. There are a number of attractions within walking distance including Damien Hirst’s now famous Verity statue situated on the Harbour, the award-winning Ilfracombe Aquarium, the unique Tunnels Beaches and many more. You will find numerous events and festivals throughout the year, many based on the quayside at the historic harbour and at the prestigious Landmark Theatre on the seafront. There are many fine and award winning beaches close by, from secluded coves to the wide stretches of golden sand with crashing surf. For a unique beach experience visit 'The Tunnels' in Ilfracombe, holders of a blue flag and seaside award or Hele Bay, to the east of the town, also award winners, for good bathing and rock pool exploring. Putsborough, Woolacombe and Croyde are within easy motoring distance, whilst North Devon’s regional centre of Barnstaple is approximately 20 minutes driving time.

Directions
With our office on your right hand side, proceed down the high street and onto Fore Street. Continue on foot, and Coburg Terrace can be found a short way down on the right hand side with a For Sale board clearly displayed.

Main Entrance

Door leading to:

Entrance Porch (3' 7" x 3' 0")

Period tiled flooring, dado rail. Partly glazed opaque door leading to:

Entrance Hall (9' 0" x 3' 0")

Period tiled flooring, dado rail, radiator, stairs to upper floors. Door leading to:

Self-Contained Annex

Hallway (11' 3" x 3' 9")

Dado rail. Archway leading to:

Sitting Room (14' 2" x 9' 9")

Sash window to front elevation, sash window to side elevation, hearth with surround, alcove, ceiling cornicing, ceiling rose, radiator.

Bedroom One (11' 1" x 11' 2")

Opaque door to side elevation allowing the apartment separate access, dado rail, ceiling cornicing, ceiling rose, fitted wardrobes, radiator. Doorway leading to:

Ensuite Shower Room For Bedroom One (6' 4" x 8' 0")

Large shower cubicle, vanity wash hand basin and storage, low level push button WC, wall-mounted shaving light, extractor fan, fully tiled surround.

Utility Room (12' 2" x 8' 4")

This could become the kitchen for the self-contained apartment. Two Velux windows, base units with stainless steel sink and drainer inset, Glow-worm wall-mounted boiler supplying domestic hot water and gas central heating, space and plumbing for washing machine and tumble dryer, space for fridge and freezer, radiator.

First Floor Landing

Opaque window to rear elevation, window to rear elevation. Door leading to:

Family Bathroom

2.87m max 2.1m min x 2.5m - Sash double glazed window to side elevation. Fitted with three piece suite comprising bath with Jacuzzi features and shower head over, pedestal wash hand basin, low level WC, radiator, partly tiled walls.

Airing Cupboard (5' 1" x 2' 10")

Slatted shelving, factory lagged immersion heater.

Bedroom Four

4.3m max 3.35m min x 2.51m - Sash window to side elevation enjoying views of Fore Street, ceiling coving, radiator, large storage cupboard.

Bedroom Two

0.4m' x 3.86m max 3m min - Sash bay window to front elevation, sash window to side elevation enjoying views of Hillsborough, the sea and Damien Hirst's Verity, feature fire place with tiled surround and mantle over, dado rail, ceiling cornicing, alcove, ceiling rose, built in wardrobe, radiator.

Second Floor Landing

Partly glazed opaque door leading to foot bridge giving access into the rear garden. Door leading to:

Lounge (9' 10" x 16' 4")

Triple aspect room with sash window to the front elevation boasting views of Capstone and sea views off Wildersmouth beach, three sash windows to side elevation enjoying gorgeous views of Ilfracombe town, Hillsborough and the harbour and window to rear with views of the garden. Two original fire places, ceiling rose, two radiators. Door leading to:

Kitchen (10' 7" x 9' 4")

Sash window to side elevation enjoying sea views and also views of Hillsborough. Fitted with wall and base units with work surface over, one-and-a-half bowl sink and drainer, 5 ring gas hob, eye level electric over, space for under counter fridge, tiled splash backing, radiator.

Third Floor

Bedroom (11' 4" x 12' 1")

UPVC double glazed window to rear elevation, radiator, eaves storage. Door leading too:

Ensuite Shower Room (5' 2" x 7' 0")

UPVC double glazed opaque window to rear elevation, shower cubicle with Mira electric shower, wall-mounted sink with tiled splash backing, low level WC, radiator, partly tiled surround.

Outside

The property is accessed up some steps which lead onto Coburg Terrace. The property can be found at the end of this terrace and there is space for some potted plants to the front. To the rear, there is a large, tiered lawned garden which is accessed from the second floor of the property. From rear garden, glorious views of Ilfracombe and the sea can be enjoyed.

Floor Plans

Property Location

Marketed by Bond Oxborough Phillips - Ilfracombe Sales



By submitting this form, you accept our Terms of Use.

Disclaimer Property descriptions and related information displayed on this page are marketing materials provided by Bond Oxborough Phillips - Ilfracombe Sales. estateagents365.uk does not warrant or accept any responsibility for the accuracy or completeness of the property descriptions or related information provided here and they do not constitute property particulars. Please contact Bond Oxborough Phillips - Ilfracombe Sales for full details and further information.