End terrace house for sale in Haverhill CB9, 3 Bedroom

Haverhill, Haverhill, UK

Quick Summary

Property Type:
End terrace house
Status:
For sale
Price
£ 240,000
Beds:
3
Baths:
1
Recepts:
1
County
Suffolk
Town
Haverhill
Outcode
CB9
Location
Lowry Close, Haverhill, Suffolk CB9
Marketed By:
Cheffins - Haverhill
Posted
2024-04-01
CB9 Rating:





More Info?
Please contact Cheffins - Haverhill on 01440 387965 or Request Details

Property Description

Haverhill Haverhill is a thriving and popular market town, the fastest growing in Suffolk, and is one of the most convenient towns for access to Cambridge (17 miles), London Stansted Airport (around 30 minutes drive) and the M11 corridor. There is a mainline rail station at Audley End (12 miles) direct in to London Liverpool Street.

Despite its excellent road links, Haverhill remains a relatively affordable place to buy and rent a property. Continuing private and public investment into the town to provides it with growing residential, commercial and leisure facilities.

Current facilities include High Street shopping with a popular twice weekly market, out of town shopping, public houses, cafes, restaurants, social clubs and hotels, a well-respected 18 hole golf course, a comprehensive nursery and schooling system, a well used sports centre with all weather pitches, gymnasia, churches of various denominations and much more. The town centre is attracting a growing number of national chains and there is also a town centre multiplex cinema complex with associated eateries.

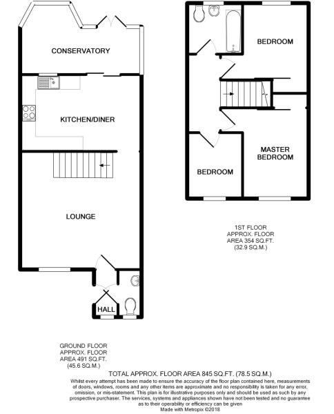
Entrance hall: Tiled flooring, inset spotlights, coving, double glazed window to front, radiator

downstairs WC: With suite comprising low level wc, wall mounted wash hand basin, coving, double glazed window to front, radiator

lounge: 14'10 x 14'5 (4.52m x 4.39m) Laminate wood flooring, stairs to first floor landing, double glazed window to front, radiator, door to:-

kitchen/dining room: 14'10 x 9'5 (4.52m x 2.87m)Fitted with range of matching wall and base cream fitted gloss units with woodblock effect worktop surfaces and under plinth lighting, sink unit with mixer tap & water softener installed, integrated appliances such as a fridge/freezer, slimline dishwasher, washing machine, built in oven and five ring gas hot with matching extractor fan canopy hood, part tiled walls and flooring with underfloor heating. The dining area has wood effect flooring, coving, radiator, patio doors leading to:-

conservatory: 15'4 x 8'9 5'10 Wood construction with polycarbonate roof, sealed unit double glazed windows to the rear and right hand side with french doors leading out onto the garden.

On the first floor

landing: Radiator, doors to:-

bedroom 1 10' 0" x 11' 1" (3.05m x 3.38m) Reducing to 8'1

Built in double sliding wardrobe, double glazed window to front, radiator

bedroom 2: 10' 9" x 9' 5" (3.28m x 2.87m) Reducing to 8'1
Built in double sliding wardrobe, loft hatch, double glazed window to rear, radiator

bedroom 3: 8' 1" x 6' 4" (2.46m x 1.93m) Double glazed window to front, radiator

bathroom: With suite comprising a side panelled bath with mixer tap and shower attachment, glass shower screen, pedestal wash hand basin with mixer tap, low level wc, part tiled walls, shaver point, extractor fan, double glazed window to rear, ladder style radiator

outside: Rear: South facing gardens with paved patio area with a good sized laid to lawn garden, a second decked patio at the end of the garden, the garden is enclosed by fencing, to the side there is a good sized pergola, two timber sheds, gated side access leading to the front and a door leading to the garage. The garden sides onto small wooded area offering privacy To the front there is a shared block paved driveway which leads to a brick built garage with up and over door.

Special notes 1. None of the fixtures and fittings are included in the sale unless specifically mentioned in these particulars.

2. Please note that none of the appliances or the services at this property have been checked and we would recommend that these are tested by a qualified person before entering into any commitment. Please note that any request for access to test services is at the discretion of the owner.

3. Floorplans are produced for identification purposes only and are in no way a scale representation of the accommodation.

Viewings By appointment through the Agents.

Floor Plans

Property Location

Marketed by Cheffins - Haverhill



By submitting this form, you accept our Terms of Use.

Disclaimer Property descriptions and related information displayed on this page are marketing materials provided by Cheffins - Haverhill. estateagents365.uk does not warrant or accept any responsibility for the accuracy or completeness of the property descriptions or related information provided here and they do not constitute property particulars. Please contact Cheffins - Haverhill for full details and further information.