End terrace house for sale in Derby DE3, 3 Bedroom

Derby, Derby, UK

Quick Summary

Property Type:
End terrace house
Status:
For sale
Price
£ 249,995
Beds:
3
Baths:
2
Recepts:
2
County
Derbyshire
Town
Derby
Outcode
DE3
Location
"Kennett" at Kensey Road, Mickleover, Derby DE3
Marketed By:
David Wilson Homes @ Mickleover
Posted
2024-04-19
DE3 Rating:





More Info?
Please contact David Wilson Homes @ Mickleover on 01332 494796 or Request Details

Property Description

Plot 111, The Kennett at David Wilson Homes at Mickleover | Located across from large green open space, close to great schools and road links. Highlights include a generous dining kitchen with French doors flowing to the garden, the master suite with en suite and parking for 2 cars.

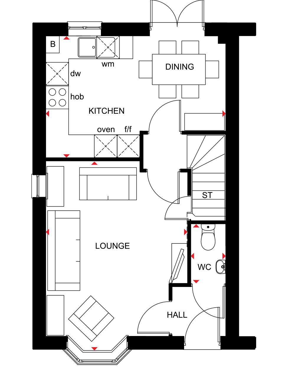
Rooms


G
  • Kitchen / Dining (4733mm x 3197mm (15'6'' x 10'5''))
  • Lounge (5001mm x 3729mm (16'4'' x 12'2''))
  • Wc (1561mm x 915mm (5'1'' x 3'0''))
1
  • Bedroom 2 (Double) (4116mm x 2659mm (13'6'' x 8'8''))
  • Bedroom 3 (Double) (3658mm x 2659mm (12'0'' x 8'8''))
  • Bathroom (2498mm x 1985mm (8'2'' x 6'6''))
2
  • Bedroom 1 (Double) (6690mm x 4733mm (21'11'' x 15'6''))
  • Ensuite 1 (1210mm x 2497mm (3'11'' x 8'2''))

About David Wilson Homes @Mickleover


Get stamp duty paid plus much more on selected homes when you reserve before 10.02.19*.  David Wilson Homes at Mickleover features 3,4 and 5 bedroom homes located in a leafy suburb, next to rolling open fields and just a 15 minutes' drive to Derby city centre. This growing community is popular with working professionals and families looking for the perfect place to lay down some roots, yet being within a simple commute into the city centre. For your weekly shop, Mickleover's town centre is within walking distance via a scenic wooded pathway.*Terms and conditions apply. Speak to our Sales Adviser for more information. Call now.

Leisure


Markeaton Park is a family friendly open space with a large free play area - ideal to keep the kids entertained. During the summer months bring your costumes and a picnic to make use of the free paddling pool, or enjoy some of the many seasonal events, from funfairs, outdoor cinema, guided walks, family arts, bouncy castles, crazy golf, electric cars and crafts to donkey rides.

Education


A range of schooling options are nearby for all ages, including the prestigious Derby Grammar School, Brookfield Primary School, Mickleover Primary school and Littleover Community School.

Shopping


A M&S Simply Food and Tesco's supermarket are less than a mile away, whilst Derby city centre is just a short drive away via the A516 and has a wealth of high street retailers at Intu Derby.

Transport


For commuter convenience, David Wilson Homes at Mickleover is in an ideal location. The A50 and A38 are located just a short drive away providing a direct link to Derby and Burton on Trent.

Derby Railway Station is just minutes away and has direct services available throughout the day to Birmingham and London. It also provides a useful service directly to East Midlands Airport.

Health


The Royal Derby Hospital, a doctors surgery, dentist and pharmacy are all close by.

Opening Hours


Open Monday 12.30pm-5.30pm and Thursday to Sunday 10am-5.30pm

Directions


David Wilson Homes at Mickleover - DE3 0BY
Head south-west on A38. Take the A5121/Branston slip road to Burton. At the roundabout, take the 4th exit onto the A38 slip road to Derby. Merge onto A38, taking the slip road to Mickleover/Littleover/Findern. Then continue, take Hedingham Way to Kensey Road where you will come across David Wilson Homes at Mickleover.

Disclaimer


Please note that all images (where used) are for illustrative purposes only.

Floor Plans

Property Location

Marketed by David Wilson Homes @ Mickleover



By submitting this form, you accept our Terms of Use.

Disclaimer Property descriptions and related information displayed on this page are marketing materials provided by David Wilson Homes @ Mickleover. estateagents365.uk does not warrant or accept any responsibility for the accuracy or completeness of the property descriptions or related information provided here and they do not constitute property particulars. Please contact David Wilson Homes @ Mickleover for full details and further information.