End terrace house for sale in Calne SN11, 3 Bedroom

Calne, Calne, UK

Quick Summary

Property Type:
End terrace house
Status:
For sale
Price
£ 265,000
Beds:
3
Baths:
2
Recepts:
1
County
Wiltshire
Town
Calne
Outcode
SN11
Location
Saddleback Close, Calne, Wiltshire SN11
Marketed By:
Richard James Estate Agents
Posted
2018-09-14
SN11 Rating:





More Info?
Please contact Richard James Estate Agents on 01793 937581 or Request Details

Property Description

*****no onward chain***** stunning family home***** cul-de-sac location*****

Richard James are delighted to p
resent this gorgeous three bedroom town house situated within a cul-de-sac location and walking distance of the town centre
.
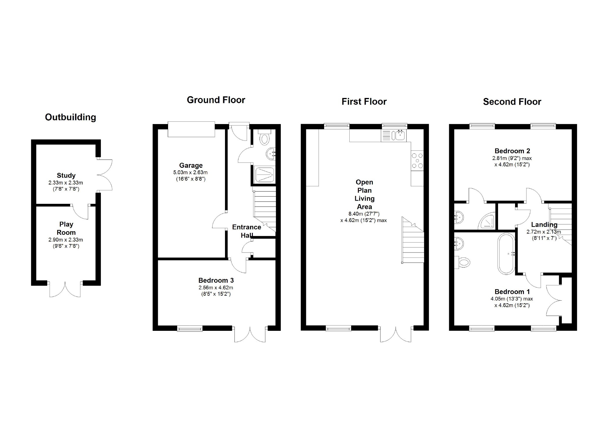
The accommodation is light and spacious through out and offers a versatile style of living which comprises of, entrance hall, shower room and bedroom three. To the first floor you have the beautiful open plan living, kitchen and dining area. The second floor comprises of two double bedrooms, one with en-suite bathroom and the other with en-suite shower room.
Externally you have driveway parking for serval vehicles, car port, garage, delightful enclosed rear garden over looking the river Marden and outbuilding which is split into two rooms which are currently used as study and play room.

Calne is a town and civil parish in Wiltshire, southwestern England, at the northwestern extremity of the North Wessex Downs hill range, a designated Area of Outstanding Natural Beauty.

Floor plans-These are intended as a guide only. Dimensions are approximate. Not to scale. We have taken every care with the preparation of these details. They do not form any part of an offer or contract and are a guide only. We have not tested any apparatus, equipment, fitting or services and cannot verify they are in working order. All measurements are approximate.

Floor Plans

Property Location

Marketed by Richard James Estate Agents


By submitting this form, you accept our Terms of Use.

Disclaimer Property descriptions and related information displayed on this page are marketing materials provided by Richard James Estate Agents. estateagents365.uk does not warrant or accept any responsibility for the accuracy or completeness of the property descriptions or related information provided here and they do not constitute property particulars. Please contact Richard James Estate Agents for full details and further information.