Detached house to rent in York YO41, 5 Bedroom

York, York, UK

Quick Summary

Property Type:
Detached house
Status:
To rent
Price
£ 323
Beds:
5
County
North Yorkshire
Town
York
Outcode
YO41
Location
Brown Moor Road, Stamford Bridge, York YO41
Marketed By:
Churchills Estate Agents
Posted
2024-05-13
YO41 Rating:





More Info?
Please contact Churchills Estate Agents on 01904 409912 or Request Details

Property Description

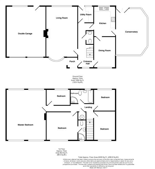
Extended 5/7 bedroom or 4 bedroom with full size snooker/games room detached house. Set in this popular village close to local amenities this large family home has the benefit of gas central heating, double glazing and provides spacious living accommodation comprising; hallway; cloaks/WC, drawing room, dining room, modern fitted kitchen, utility room, fabulous large conservatory, landing, very large master bedroom (easily split in to 3 doubles) 4 further bedrooms (one with en-suite/WC) and a family bathroom. Outside to the front is an integral double garage whilst to the rear is a good size garden. An internal viewing is strongly recommended.

Front Door To:

Entrance Hall
Stairs to first floor, arch window, coving, radiator, power points. Panelled door to;

Cloaks/WC
Wash hand basin, low level WC, radiator, extractor fan.

Drawing Room
21' 2" x 13' 1" (6.45m x 3.99m)
Double glazed bow window to front, patio doors to rear garden, ceiling cornicing, ceiling rose, ceiling and wall lights, 2 radiators, living flame fire, power points.

Dining Room
12' 11" x 9' (3.94m x 2.74m)
Double glazed window to front, radiator, power points. Carpet. Door to;

Utility Room
Base and wall mounted units with work tops and space for several appliances.

Kitchen
12' 8" x 9' (3.86m x 2.74m)
Modern fitted units comprising sink unit with cupboards below, base units with cupboards and drawers, matching wall units, laminated work surfaces, built in double oven, microwave and hob with extractor hood above, integrated dishwasher, fridge and freezer, power points, double glazed window to rear. Laminate wood flooring. Door to;

Conservatory
19' 7" x 10' 6" (5.97m x 3.20m)
This is a fabulous large family living space with separate sitting area, double glazed window to 3 aspects, under floor heating, French doors to garden.

First Floor Landing
Access to roof space, airing cupboard. Doors to;

Bedroom 1
13' 1" x 11' 10" (3.99m x 3.61m)
Double glazed window to front, radiator, power points. Door to;

En-Suite Shower Room
Walk-in shower cubicle, wash hand basin, low level WC.

Bedroom 2
21' 2" x 16' 6" (6.45m x 5.03m)
This large bedroom was designed as a snooker room with a reinforced floor but would easily convert in to 2 double bedrooms. The room currently has double glazed windows to front and rear, radiators, power points.

Bedroom 3
12' 2" x 9' 1" (3.71m x 2.77m)
Double glazed window to front, radiator, power points. Carpet.

Bedroom 4
9' 1" x 9' (2.77m x 2.74m)
Double glazed window to rear, radiator, power points. Carpet.

Bedroom 5
9' 11" x 6' 8" (3.02m x 2.03m)
Double glazed window to rear, radiator, power points. Carpet.

Bathroom
Modern suite comprising panelled bath, separate walk-in shower cubicle, wash hand basin, low level WC, double glazed window to rear, extractor fan, radiator.

Outside
Front garden set to lawn with driveway leading to a large integral double garage measuring 21' x 16'6 with power and light. To the rear is a large garden which is very secluded mainly set to lawn with privet hedging.

Note
Built within 300 yards of Primary/Junior Schools and a short walk to the village centre comprising local shops, pubs, restaurants, post office, doctors and dentist. The property has a large first floor bedroom with reinforced floor that was designed to accommodate a full size snooker table.

EPC


Floor Plans

Property Location

Marketed by Churchills Estate Agents



By submitting this form, you accept our Terms of Use.

Disclaimer Property descriptions and related information displayed on this page are marketing materials provided by Churchills Estate Agents. estateagents365.uk does not warrant or accept any responsibility for the accuracy or completeness of the property descriptions or related information provided here and they do not constitute property particulars. Please contact Churchills Estate Agents for full details and further information.