Detached house to rent in Slough SL3, 4 Bedroom

Slough, Slough, UK

Quick Summary

Property Type:
Detached house
Status:
To rent
Price
£ 923
Beds:
4
Recepts:
2
County
Berkshire
Town
Slough
Outcode
SL3
Location
Slough Road, Datchet, Slough SL3
Marketed By:
Romans - Windsor
Posted
2024-04-24
SL3 Rating:





More Info?
Please contact Romans - Windsor on 01753 903719 or Request Details

Property Description

A rare opportunity......................

This charming detached family home features a stunning garden and is located within the popular village of Datchet. It is well positioned for commuters with nearby motorway links and easy access to the mainline train station with connections to London Waterloo. On the ground floor there is a dual aspect reception room, downstairs cloakroom and an open plan kitchen and living area; offering flexibility for modern family living. The first floor comprises four bedrooms and two bathrooms. The property further benefits from a garage, in and out driveway, and a well-established substantial garden. Viewings are highly recommended. Council tax band G. Landlord is flexible on furnishings. Available with two months prior notice. Please contact the Windsor office today to book your appointment to view on .

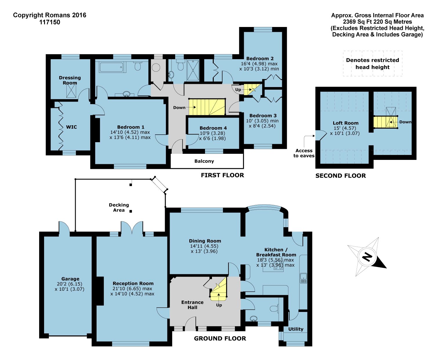
Floor Plans

Property Location

Marketed by Romans - Windsor


By submitting this form, you accept our Terms of Use.

Disclaimer Property descriptions and related information displayed on this page are marketing materials provided by Romans - Windsor. estateagents365.uk does not warrant or accept any responsibility for the accuracy or completeness of the property descriptions or related information provided here and they do not constitute property particulars. Please contact Romans - Windsor for full details and further information.