Detached house to rent in London SW20, 6 Bedroom

London, London, UK

Quick Summary

Property Type:
Detached house
Status:
To rent
Price
£ 1,558
Beds:
6
County
London
Town
London
Outcode
SW20
Location
Cambridge Road, Wimbledon SW20
Marketed By:
Robert Holmes
Posted
2024-04-19
SW20 Rating:





More Info?
Please contact Robert Holmes on 020 3478 3537 or Request Details

Property Description

Occupying the corner plot in this sought after West Wimbledon Conservation area this spacious 6 bedroom unfurnished house is laid over three floors and is ideally designed for modern family life. Ec/C

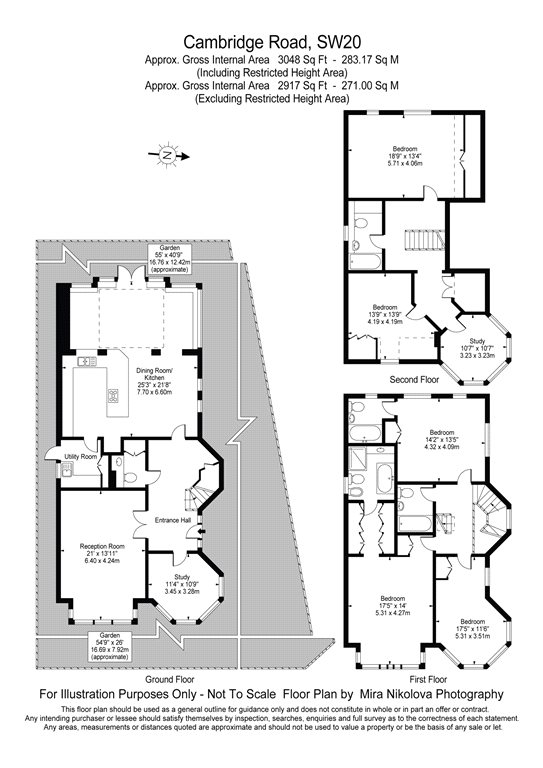
Floor Plans

Property Location

Marketed by Robert Holmes


By submitting this form, you accept our Terms of Use.

Disclaimer Property descriptions and related information displayed on this page are marketing materials provided by Robert Holmes. estateagents365.uk does not warrant or accept any responsibility for the accuracy or completeness of the property descriptions or related information provided here and they do not constitute property particulars. Please contact Robert Holmes for full details and further information.