Detached house to rent in London SW13, 3 Bedroom

London, London, UK

Quick Summary

Property Type:
Detached house
Status:
To rent
Price
£ 762
Beds:
3
Baths:
3
Recepts:
3
County
London
Town
London
Outcode
SW13
Location
Lonsdale Road, Barnes, London SW13
Marketed By:
Chestertons - Barnes Village
Posted
2018-12-26
SW13 Rating:





More Info?
Please contact Chestertons - Barnes Village on 020 8115 2487 or Request Details

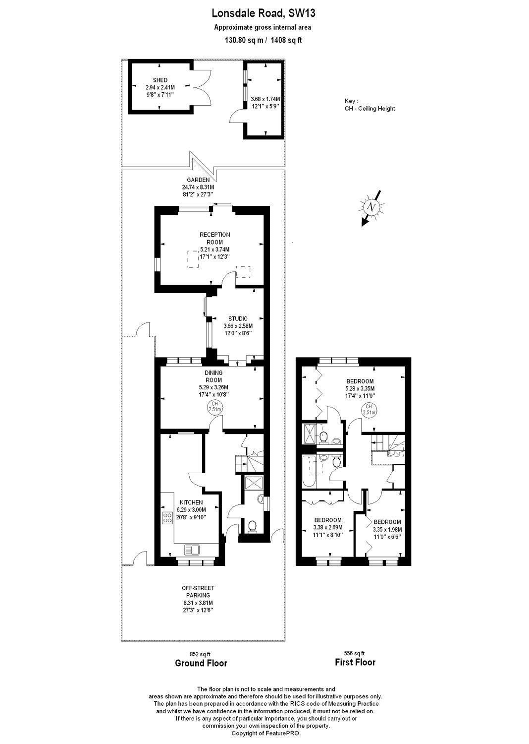
Property Description

A detached house, close to the Thames, boasting an exceptionally spacious ground floor living area, a good-sized south-facing rear garden and off-street parking for several cars.

On the ground floor, the entrance hall opens onto a large modern kitchen, a cloakroom and the first of three reception room - currently a dining room. There are a further two reception rooms on this floor with direct access to the garden.

Upstairs, there is a master bedroom with built-in wardrobes and an en-suite shower room. There are also another two double bedrooms, a main bathroom and storage on the landing.

Lonsdale Road is well positioned along the Thames, providing convenient access to the amenities of Barnes village at one end and the public transport hubs of Hammersmith at the other end. Nearby schools include The Harrodian, The Swedish School and St Paul's School.

Floor Plans

Property Location

Marketed by Chestertons - Barnes Village


By submitting this form, you accept our Terms of Use.

Disclaimer Property descriptions and related information displayed on this page are marketing materials provided by Chestertons - Barnes Village. estateagents365.uk does not warrant or accept any responsibility for the accuracy or completeness of the property descriptions or related information provided here and they do not constitute property particulars. Please contact Chestertons - Barnes Village for full details and further information.