Detached house to rent in Leighton Buzzard LU7, 2 Bedroom

Leighton Buzzard, Leighton Buzzard, UK

Quick Summary

Property Type:
Detached house
Status:
To rent
Price
£ 230
Beds:
2
Baths:
2
Recepts:
1
County
Bedfordshire
Town
Leighton Buzzard
Outcode
LU7
Location
High Street, Cheddington, Leighton Buzzard LU7
Marketed By:
Michael Anthony
Posted
2024-04-03
LU7 Rating:





More Info?
Please contact Michael Anthony on 01442 894455 or Request Details

Property Description

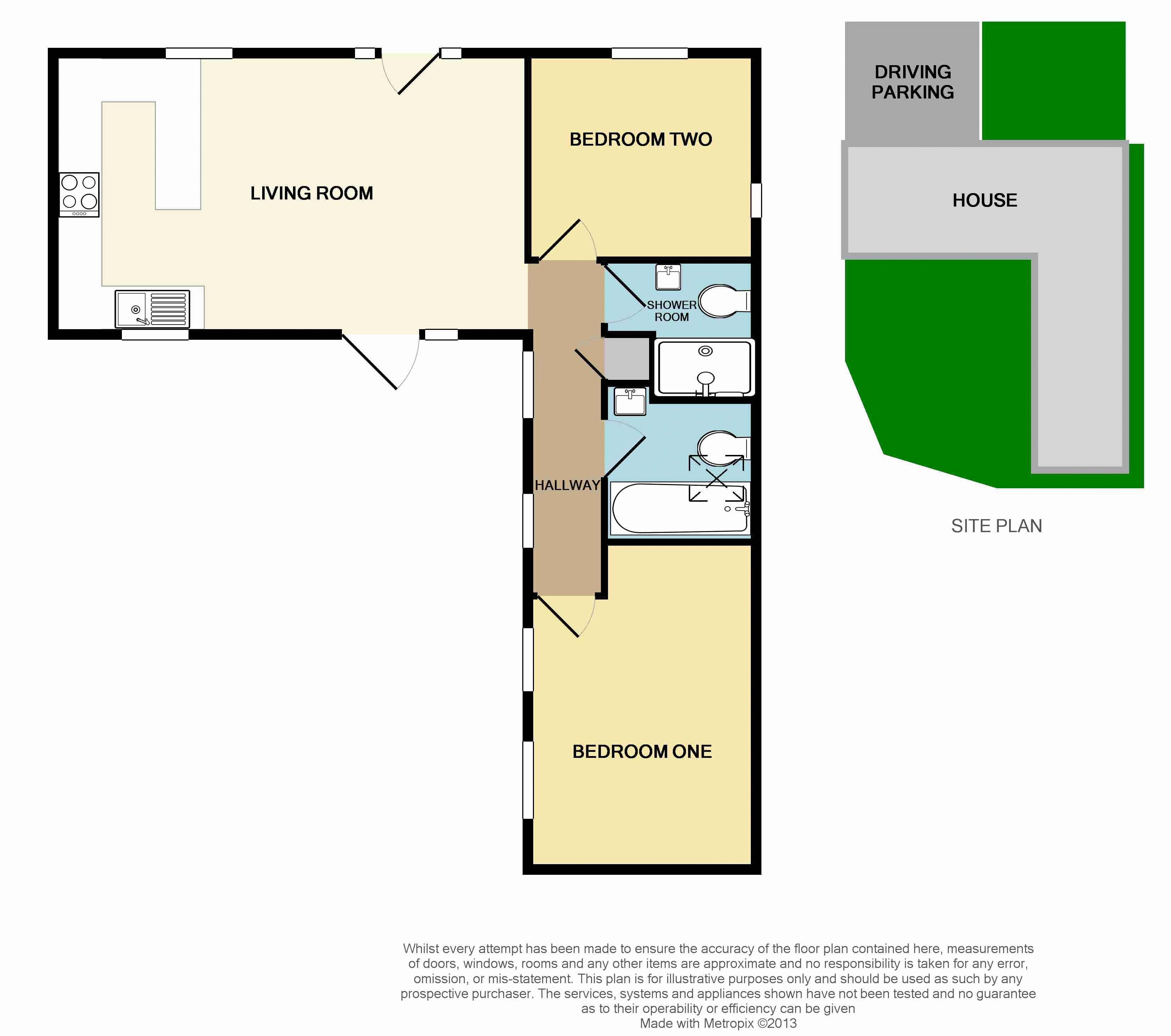
This beautifully refurbished two bedroom detached barn conversion provides unique, modern living space with the added bonus of a popular village location. Accommodation comprises sitting room (12'7" x 12'3") with high ceilings and beams, open plan kitchen (13' x 9'9"), two bedrooms, one large double (15'2" x 9' narr to 8'2) and one standard double (10'7" x 9'7"), shower room with double sized cubicle, family bathroom with hand held mixer shower, double glazing, gas to radiator central heating, good loft storage space, off street parking, lawned areas to front and rear. Available immediately on an unfurnished basis. Council tax band E. Current energy rating grade C.

Entrance

Door to:

Lounge

Double glazed double door to rear. Radiator. Exposed timbers. Opening to inner hall. Opening to kitchen area.

Kitchen

Fitted with single drainer stainless steel sink unit with mixer tap. Range of both floor and wall mounted units with roll edge work surface, built in oven and hob with extractor fan over, recess spotlighting, tiled floor. Radiator. Wall mounted gas fired boiler. Double glazed windows to front and rear.

Inner Hall

Radiator. Double glazed window.

Bedroom One

Double glazed windows to rear. Radiator. Exposed timbers.

Bedroom Two

Double glazed windows to front and side. Radiator. Access to loft space. Exposed timber.

Shower Room

Tiled shower cubicle, wash hand basin, low level w.C. Radiator. Part tiled walls.

Bathroom

White suite comprising panelled bath with mixer tap and shower attachment, pedestal wash hand basin, low level w.C. Radiator. Tiled floor. Part tiled walls. Recessed spotlighting. Double glazed velux window.

Outside

Front Garden

Mainly laid to lawn with driveway providing off road parking.

Rear Garden

Mainly laid to lawn with shingled patio/additional parking.

Floor Plans

Property Location

Marketed by Michael Anthony



By submitting this form, you accept our Terms of Use.

Disclaimer Property descriptions and related information displayed on this page are marketing materials provided by Michael Anthony. estateagents365.uk does not warrant or accept any responsibility for the accuracy or completeness of the property descriptions or related information provided here and they do not constitute property particulars. Please contact Michael Anthony for full details and further information.