Detached house to rent in Egham TW20, 6 Bedroom

Egham, Egham, UK

Quick Summary

Property Type:
Detached house
Status:
To rent
Price
£ 1,154
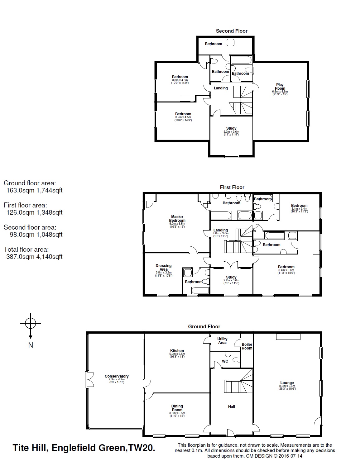
Beds:
6
Baths:
6
Recepts:
5
County
Surrey
Town
Egham
Outcode
TW20
Location
Tite Hill, Englefield Green, Egham TW20
Marketed By:
Hamptons International - Sunningdale Lettings
Posted
2018-10-21
TW20 Rating:





More Info?
Please contact Hamptons International - Sunningdale Lettings on 01344 527040 or Request Details

Property Description

Set in the grounds of an historic country house within acres of communal grounds a Regency styled detached house arranged over three floors with superb period detail. Runnymede Park covers over 50 acres of wooded parkland featuring specimen trees, panoramic views and features such as the Canal Garden, Daffodil Hill and Bluebell Hill. The park is rich in wildlife including deer, foxes, badgers, rabbits. Council tax band H

Floor Plans

Property Location

Marketed by Hamptons International - Sunningdale Lettings


By submitting this form, you accept our Terms of Use.

Disclaimer Property descriptions and related information displayed on this page are marketing materials provided by Hamptons International - Sunningdale Lettings. estateagents365.uk does not warrant or accept any responsibility for the accuracy or completeness of the property descriptions or related information provided here and they do not constitute property particulars. Please contact Hamptons International - Sunningdale Lettings for full details and further information.