Detached house to rent in Dunmow CM6, 4 Bedroom

Dunmow, Dunmow, UK

Quick Summary

Property Type:
Detached house
Status:
To rent
Price
£ 658
Beds:
4
County
Essex
Town
Dunmow
Outcode
CM6
Location
Radleys End, Duton Hill, Dunmow CM6
Marketed By:
David Lee Estate Agents
Posted
2018-11-18
CM6 Rating:





More Info?
Please contact David Lee Estate Agents on 01279 799721 or Request Details

Property Description

Stunning new 4 bedroom home
A Superb New Build Barn Conversion set in an acre of land in Duton Hill. Surrounded by exquisite panoramic countryside views. Duton Hill is set between the market towns of Thaxted and Great Dunmow. Comprising of a private shingle driveway leading up and around the property complimented by CCTV from the security gate and onwards. Next a 3 Car Cart Lodge and the grandest of main entrances with an abundance of natural light. Shining through to the large open plan living space & bespoke galleried glass landing, both made in Oak with the inclusion of underfloor heating throughout. Every bedroom room has either a 3 or 4 piece bathroom. Highly specified and with no expense spared this A++ EPC Rated property, while being extremely economical is an absolute must see for anyone looking to move into the area. Full description to be supplied on appointment.
Viewings Strictly By Appointment Only.

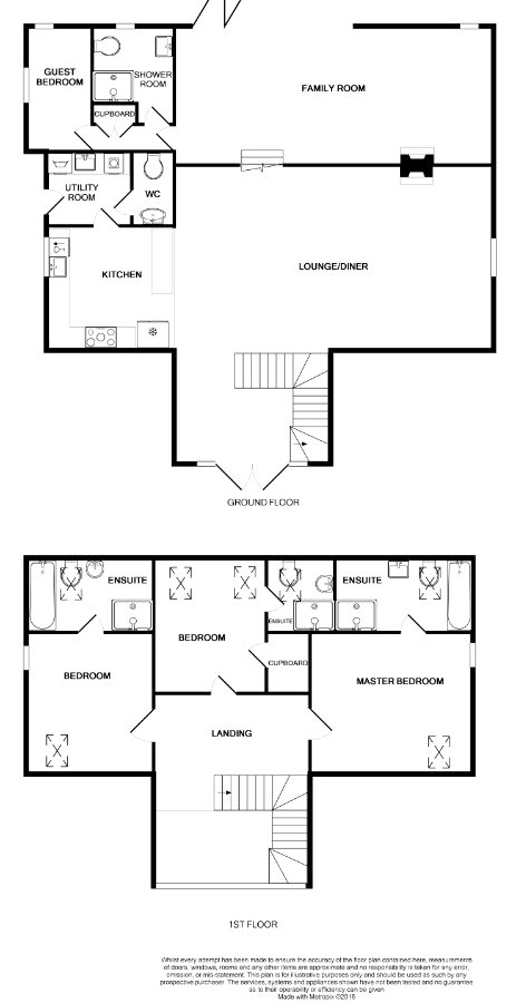
Living Room 30' x 13'1" (9.14m x 3.99m).

Dining Room 30' x 28'11" (9.14m x 8.81m).

Kitchen 12' x 11'8" (3.66m x 3.56m).

Master Bedroom 15'4" x 13'4" (4.67m x 4.06m).

Bedroom 2 13'4" x 12' (4.06m x 3.66m).

Bedroom 3 12'9" x 10'7" (3.89m x 3.23m).

Guest Bedroom 11'9" x 6'2" (3.58m x 1.88m).


Floor Plans

Property Location

Marketed by David Lee Estate Agents


By submitting this form, you accept our Terms of Use.

Disclaimer Property descriptions and related information displayed on this page are marketing materials provided by David Lee Estate Agents. estateagents365.uk does not warrant or accept any responsibility for the accuracy or completeness of the property descriptions or related information provided here and they do not constitute property particulars. Please contact David Lee Estate Agents for full details and further information.