Detached house for sale in Warlingham CR6, 4 Bedroom

Warlingham, Warlingham, UK

Quick Summary

Property Type:
Detached house
Status:
For sale
Price
£ 750,000
Beds:
4
County
Surrey
Town
Warlingham
Outcode
CR6
Location
Farleigh Road, Warlingham, Surrey CR6
Marketed By:
Streets Ahead - Purley
Posted
2024-04-06
CR6 Rating:





More Info?
Please contact Streets Ahead - Purley on 020 3478 3463 or Request Details

Property Description

Location


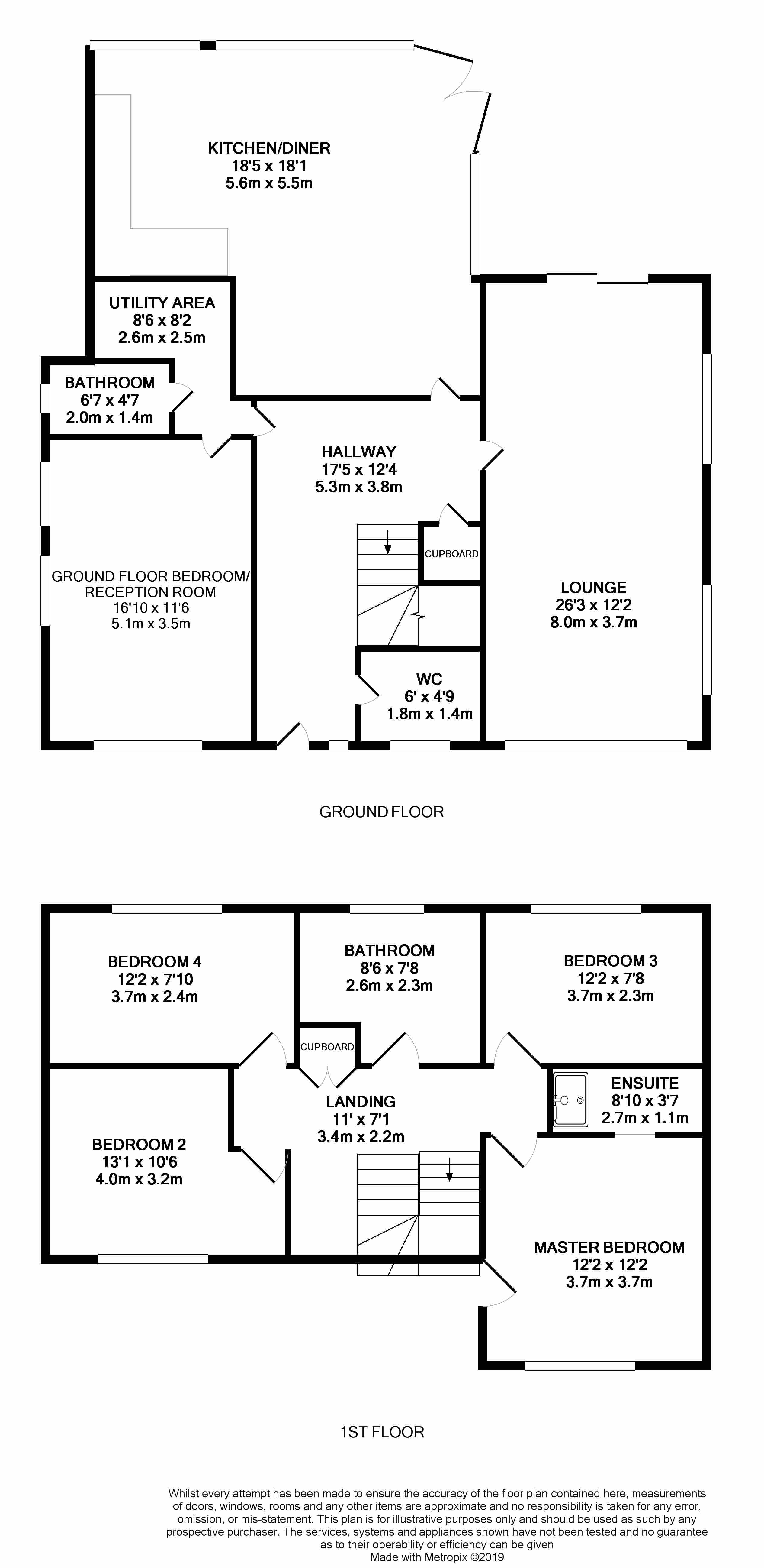
This substantial detached family home is ideally located to take advantage of the areas excellent infastructure including schools and transport links. Internally the property offers a fabulus open plan kitchen breakfast room with patio doors to the garden. A lovely bright Through lounge dining room and downstairs cloakroom. Within the main residence but also with private acess is a self contained one bedroom annexe that has a front aspect studio style living room / bedroom, separate bathroom and kitchen currently used as a utility room. On the first floor are four bedrooms with the master benfiting from an en-suite shower room. The three other bedrooms are all doubles in size with with excellent views. The modern family bathroom suite has a raised corner bath with shower. To the rear is a landscaped and maintained garden with raised flower beds and borders with rockery, outside water supply and access to a brick built storage shed with up and over garage style door as well as a timber shed with power, there is an access gate to the Bridal path that in turn leads to the Greenbelt and fields. To the front is off street parking for multiple vehicles. This spacious and desirable family home is available to view immediately, please call Streets Ahead today to make your booking or for more information.


Floor Plans

Property Location

Marketed by Streets Ahead - Purley


By submitting this form, you accept our Terms of Use.

Disclaimer Property descriptions and related information displayed on this page are marketing materials provided by Streets Ahead - Purley. estateagents365.uk does not warrant or accept any responsibility for the accuracy or completeness of the property descriptions or related information provided here and they do not constitute property particulars. Please contact Streets Ahead - Purley for full details and further information.