Detached house for sale in South Queensferry EH30, 4 Bedroom

South Queensferry, South Queensferry, UK

Quick Summary

Property Type:
Detached house
Status:
For sale
Price
£ 355,000
Beds:
4
County
Edinburgh
Town
South Queensferry
Outcode
EH30
Location
Loch Place, South Queensferry, Edinburgh EH30
Marketed By:
Mov8 Real Estate
Posted
2018-11-23
EH30 Rating:





More Info?
Please contact Mov8 Real Estate on 0131 268 8851 or Request Details

Property Description



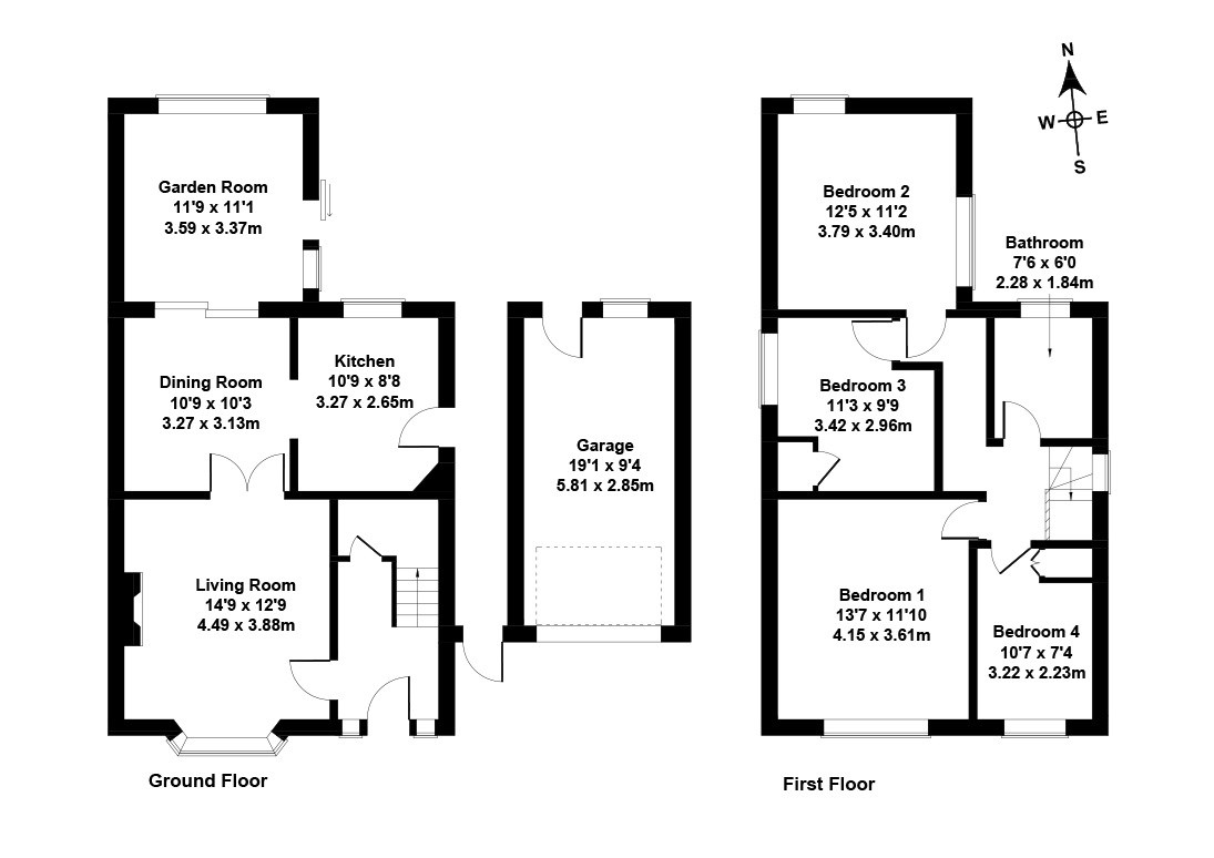
Beautifully presented and spacious four-bedroom, detached family home, with private gardens, a garage, and stunning views of the Forth Bridges. Set in a quiet residential cul-de-sac, the property is located in popular and well placed South Queensferry, to the west of Edinburgh. The entrance hall has an under-stair cupboard, carpeted stairs leading to the landing and opens into the bright and spacious living room, which features a modern living flame gas fire. The dining room allows access to the bright garden room which may be used as a family room, and the kitchen, which has a door opening onto the rear garden, is fitted with traditional units with laminate worktops, a stainless steel sink and tiled splashbacks. Appliances include a gas cooker, washing machine and dishwasher. Upstairs, front-set bedroom one has laminate flooring and ample space for freestanding storage furniture; bedroom two has newly fitted carpeting and enjoys views of the bridges; bedroom three is to the side; and single bedroom four has a store cupboard. The bathroom features a contemporary white three-piece suite with an electric over-bath shower, a ladder radiator and tiled splashbacks. South Queensferry is a picturesque town which sits on the Forth shore between the two iconic bridges. Numerous shops line the cobbled main street, where there is a large choice of pubs, bistros and restaurants within the town, whilst to the south of the town is a large Tesco store and several restaurants. South Queensferry and Port Edgar Marina offer many watersports, and there are coastal walks and trails through the Dalmeny Estate. West Lothian has country parks at Beecraigs and Muiravonside, plus a network of cycle and bridle paths. A popular commuting town for Edinburgh and Fife, it lies close to major road links; regular commuting train services are available from Dalmeny station; and there are also frequent local bus services.


Floor Plans

Property Location

Marketed by Mov8 Real Estate


By submitting this form, you accept our Terms of Use.

Disclaimer Property descriptions and related information displayed on this page are marketing materials provided by Mov8 Real Estate. estateagents365.uk does not warrant or accept any responsibility for the accuracy or completeness of the property descriptions or related information provided here and they do not constitute property particulars. Please contact Mov8 Real Estate for full details and further information.