Detached house for sale in Scarborough YO11, 4 Bedroom

Scarborough, Scarborough, UK

Quick Summary

Property Type:
Detached house
Status:
For sale
Price
£ 119,950
Beds:
4
Baths:
3
Recepts:
1
County
North Yorkshire
Town
Scarborough
Outcode
YO11
Location
Pheasant Way, Scarborough YO11
Marketed By:
Reeds Rains
Posted
2024-04-02
YO11 Rating:





More Info?
Please contact Reeds Rains on 01723 266896 or Request Details

Property Description



+++part buy part rent £119,950+++four bedrooms+++detached+++ This perfect example of a family home is now Available to purchase as part buy part rent scheme with the option of 50% or 75% of the asking price £239,950. The new build is located at Cayton Reach with a wealth of local amenities including schools, shops and local bus routes close by. The accommodation in brief comprises; entrance hall, lounge, separate WC and a spacious living dining area with double doors leading out to the garden to the rear. On the first floor are four bedrooms one with an en-suite shower room and a family bathrooms. Outside offers off street parking for two vehicles and a garage with electricity. To the rear is a secure garden with fenced borders ready for the lawn to be laid. Viewings come highly recommended. For more information or to arrange your viewing please contact the scarborough reeds rains branch. EPC rating awaiting.

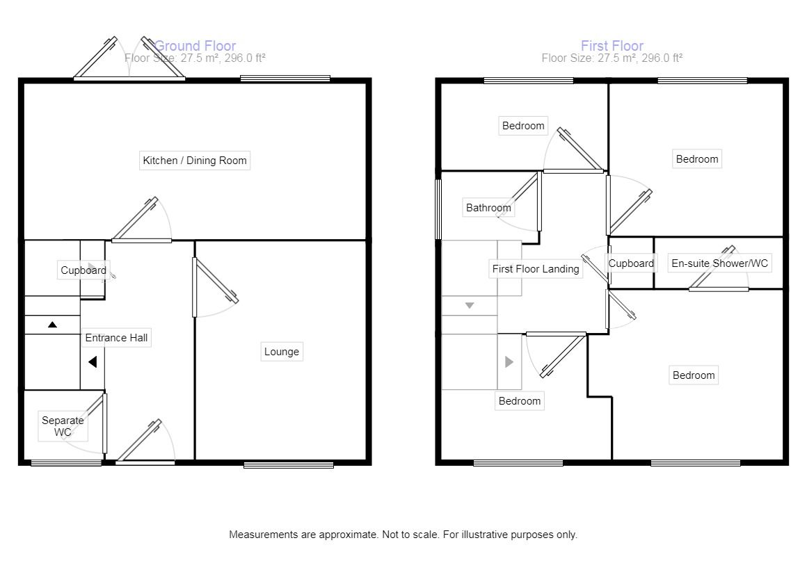
Entrance Hall

External door and one wall mounted radiator. Under stairs storage cupboard with stairs leading to the first floor. Doors leading to:

Separate WC

Dual flush WC and a wash hand basing with partially tiled splash back wall. One wall mounted radiator and a double glazed window to the front elevation.

Lounge (3.5m x 4.8m)

Spacious living area with a double glazed window to the front elevation and one wall mounted radiator. Electric and tv points.

Kitchen / Dining Room (4.3m x 6.0m)

Modern wall and base units with matching worktops, integrated appliances and sink and drainer. Double glazed window to the rear and double UPVC doors leading out to the garden. One wall mounted radiator.

First Floor Landing

Doors leading to:

Bedroom (2.3m x 3.0m)

Double glazed window to the front elevation and one wall mounted radiator.

Bedroom (2nd) (2.9m x 3.9m)

Double bedrooms with a double glazed window to the front elevation and one wall mounted radiator.

En-Suite Shower / WC (1.4m x 2.1m)

Walk in shower with fully tiled splash back walls, dual flush WC and a wash hand basin. One wall mounted radiator.

Bedroom (3rd) (3.0m x 3.2m)

Double bedroom with a double glazed window to the rear and one wall mounted radiator.

Bathroom (2.0m x 2.1m)

White three piece bathroom suite including paneled bath, wash hand basin and a dual flush WC. Partially tiled splash back walls, one wall mounted radiator and a double glazed window to the side elevation.

Bedroom (4th) (2.1m x 3.0m)

Double glazed window to the rear and one wall mounted radiator.

External

Driveway for two cars and a garage with electricity. Secure garden to the rear with fenced borders.

Important note to purchasers:

We endeavour to make our sales particulars accurate and reliable, however, they do not constitute or form part of an offer or any contract and none is to be relied upon as statements of representation or fact. Any services, systems and appliances listed in this specification have not been tested by us and no guarantee as to their operating ability or efficiency is given. All measurements have been taken as a guide to prospective buyers only, and are not precise. Please be advised that some of the particulars may be awaiting vendor approval. If you require clarification or further information on any points, please contact us, especially if you are traveling some distance to view. Fixtures and fittings other than those mentioned are to be agreed with the seller.

/8

Floor Plans

Property Location

Marketed by Reeds Rains



By submitting this form, you accept our Terms of Use.

Disclaimer Property descriptions and related information displayed on this page are marketing materials provided by Reeds Rains. estateagents365.uk does not warrant or accept any responsibility for the accuracy or completeness of the property descriptions or related information provided here and they do not constitute property particulars. Please contact Reeds Rains for full details and further information.