Detached house for sale in Redhill RH1, 3 Bedroom

Redhill, Redhill, UK

Quick Summary

Property Type:
Detached house
Status:
For sale
Price
£ 400,000
Beds:
3
Baths:
1
Recepts:
1
County
Surrey
Town
Redhill
Outcode
RH1
Location
Earlswood, Surrey RH1
Marketed By:
Mayhew Estates
Posted
2019-05-05
RH1 Rating:





More Info?
Please contact Mayhew Estates on 01293 853571 or Request Details

Property Description

Guide Price £400,000 to £440,000. Mayhews are delighted to offer this lovely detached house to the market.
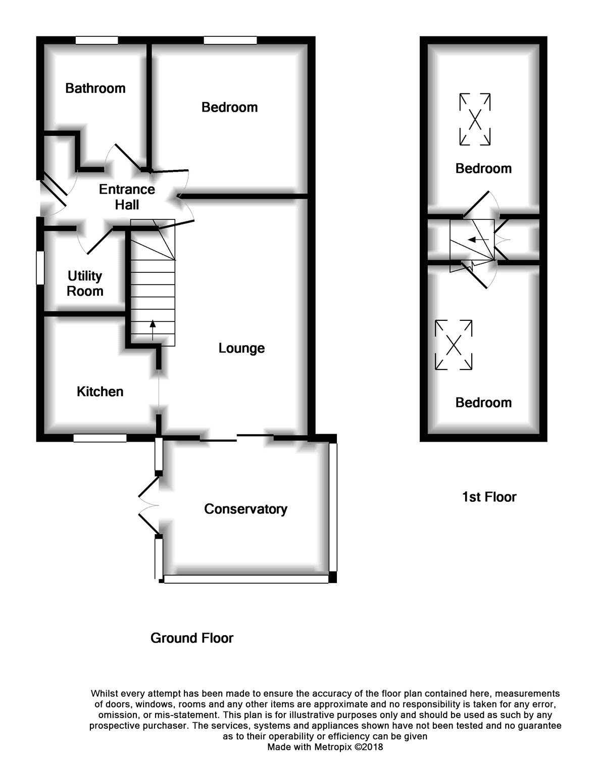
Upon arrival there is a five bar wooden gate that opens to a driveway for two to three cars, the driveway then gives access to the rear garden via the lean too. Once inside the entrance hall gives access to the lounge, bathroom, utility room and ground floor bedroom. From the lounge you can access the kitchen, conservatory and the stairs rising to the first floor is also off the lounge.
The bathroom is rather luxurious and comprises, corner bath, separate walk in open shower enclosure, sink and WC and is finished to a particularly high standard.
The kitchen again is fitted recently with a modern range of eye and base level units with work surface over, space for appliances, the oven has recently been refitted.
The conservatory links the lounge and the lovely sized rear garden.

Outside:
Front- Driveway for two/three cars, side access to rear garden via lean to.
Rear – Patio area, lean too with dog bath, large area of lawn.


Floor Plans

Property Location

Marketed by Mayhew Estates


By submitting this form, you accept our Terms of Use.

Disclaimer Property descriptions and related information displayed on this page are marketing materials provided by Mayhew Estates. estateagents365.uk does not warrant or accept any responsibility for the accuracy or completeness of the property descriptions or related information provided here and they do not constitute property particulars. Please contact Mayhew Estates for full details and further information.