Detached house for sale in Perth PH1, 4 Bedroom

Perth, Perth, UK

Quick Summary

Property Type:
Detached house
Status:
For sale
Price
£ 275,000
Beds:
4
County
Perth & Kinross
Town
Perth
Outcode
PH1
Location
Milton Farmhouse, Milton Road, Luncarty, Perth PH1
Marketed By:
Aberdein Considine
Posted
2018-12-31
PH1 Rating:





More Info?
Please contact Aberdein Considine on 01738 301956 or Request Details

Property Description

A rare opportunity to purchase a splendid former farmhouse, situated on the edge of the popular village of Luncarty. The subjects form the original Milton of Luncarty farmhouse, and are situated within sizeable garden grounds extending to over half an acre or thereby. The property could benefit from complete renovation and upgrading but offers excellent potential to perhaps a developer or investor. There may be the opportunity to demolish the farmhouse, and build a new property on the site but this would strictly be subject to the appropriate planning approval and consents being obtained by the buyer.

The property offers easy access to all that Luncarty has to offer including the local shop, post office, primary school and bus route to the city centre. Luncarty lies just off the A9 linking the area to Perth, Inverness, the central belt and beyond.

On entering the property from the formal front door, the hallway gives access to a very spacious lounge with dual aspect windows. There is also a separate box room off the hall which links the front hall to the kitchen to the rear. Additional ground floor accommodation includes a second spacious public room which could be used as a dining room. This room has a wet room shower room built within. There is also a small family room/sitting room.

A staircase leads to the first floor landing accessing three spacious bedrooms, as well as a three piece bathroom suite.

The property has a driveway to the front providing off street parking, and a garage. As well as the easily maintained garden areas to the front, the main feature of the exterior are the splendid southern facing rear gardens set to extensive lawn areas, planting beds, borders and shrubs. There is also brick wall and stone wall forming part of the boundary.

A fine opportunity for a developer, a family or investor to stamp their own authority on a house full of historical charm and significance. Viewing essential.
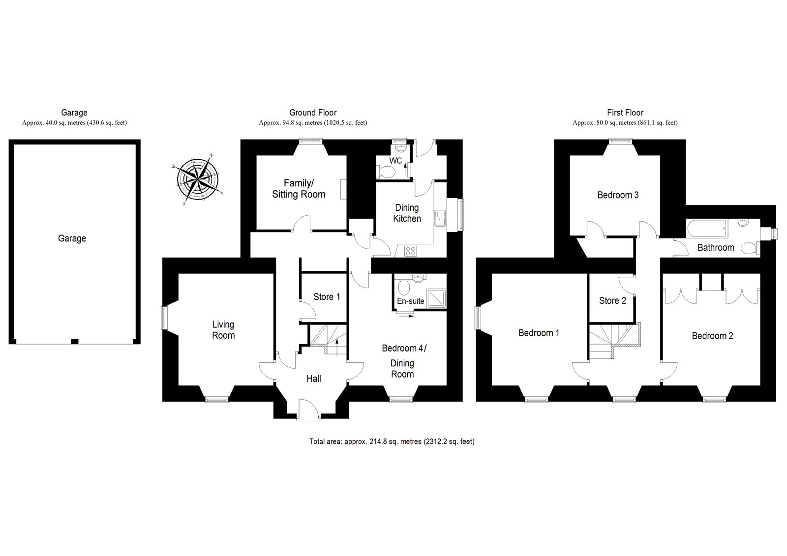
Living Room 16'8" x 14'5" (5.08m x 4.4m).

Family/Sitting Room 12'2" x 11'9" (3.7m x 3.58m).

Dining Kitchen 10'10" x 10'2" (3.3m x 3.1m).

WC 5'1" x 4'5" (1.55m x 1.35m).

Bedroom 1 16'5" x 14'8" (5m x 4.47m).

En-suite 7' x 4'10" (2.13m x 1.47m).

Bedroom 2 14'4" x 13'5" (4.37m x 4.1m).

Bedroom 3 12'6" x 12'3" (3.8m x 3.73m).

Bedroom 4/Dining Room 16'5" x 13'1" (5m x 3.99m).

Bathroom 11'6" x 4'11" (3.5m x 1.5m).

Store 1 6'7" x 6'4" (2m x 1.93m).

Store 2 6'11" x 5'7" (2.1m x 1.7m).

Garage 26'3" x 16'5" (8m x 5m).


Floor Plans

Property Location

Marketed by Aberdein Considine



By submitting this form, you accept our Terms of Use.

Disclaimer Property descriptions and related information displayed on this page are marketing materials provided by Aberdein Considine. estateagents365.uk does not warrant or accept any responsibility for the accuracy or completeness of the property descriptions or related information provided here and they do not constitute property particulars. Please contact Aberdein Considine for full details and further information.