Detached house for sale in Ossett WF5, 3 Bedroom

Ossett, Ossett, UK

Quick Summary

Property Type:
Detached house
Status:
For sale
Price
£ 185,000
Beds:
3
Baths:
1
Recepts:
1
County
West Yorkshire
Town
Ossett
Outcode
WF5
Location
Brookdale Avenue, Ossett WF5
Marketed By:
Reeds Rains
Posted
2019-05-16
WF5 Rating:





More Info?
Please contact Reeds Rains on 01924 765817 or Request Details

Property Description



*** beautifully presented three bedroom detached with garage, ample off road parking and gardens *** Being well located within easy reach of the town centre of Ossett this home has access to an array of amenities including local shops, sought after schools, public transport links and the motorway network ideal for those who commute further afield. The living accommodation briefly comprises of entrance hall. Lounge, recently fitted kitchen and utility room the ground floor. To the first floor are three bedrooms and a modern shower room. Externally the property benefits from a low maintenance pebbled garden to the front with block paved driveway offering ample parking for several cars. To the rear is a fence enclosed lawned and decked garden with garage. EPC Grade D.

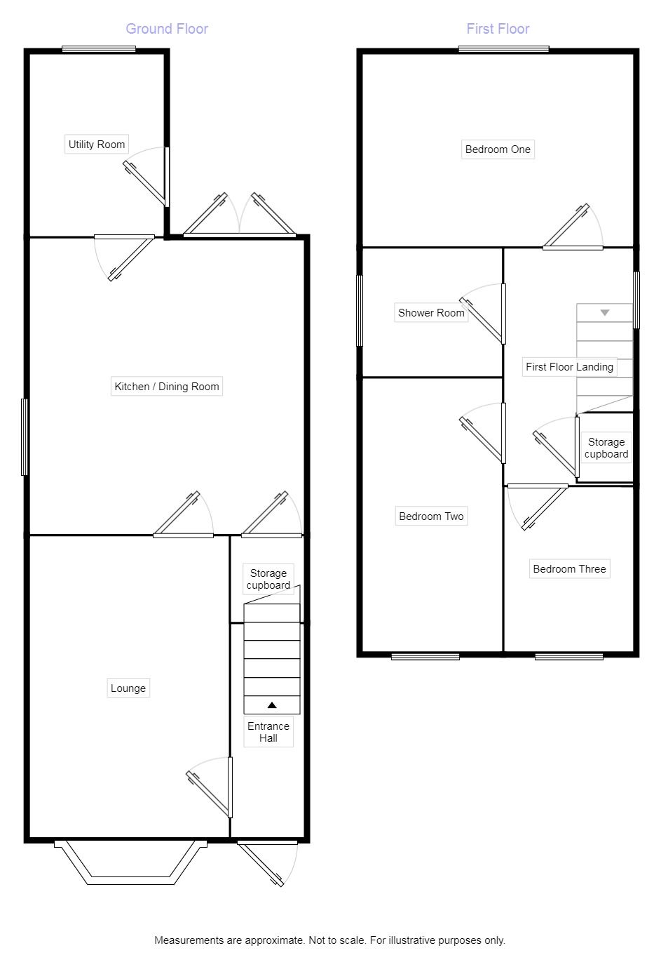
Entrance Hall

Composite entrance door to the front aspect. Central heating radiator.

Lounge (3.40m x 4.34m)

UPVC double glazed bay window to the front aspect. Central heating radiator.

Kitchen / Dining Room (4.27m x 3.25m)

UPVC entrance doors to the rear aspect and UPVC double glazed window to the side aspect. Fitted with a range of modern base units with worktops above incorporating a stainless steel sink and drainer with mixer tap. Fitted with a electric oven, gas hobs with extractor fan over. Space for fridge/freezer. Central heating radiator.

Utility Room (2.26m x 2.03m)

UPVC entrance door to the side aspect and UPVC double glazed window to the rear aspect. Fitted with a range of modern base units with worktops above incorporating a stainless steel sink and drainer with mixer tap. Plumbing and space for washing machine and dishwasher.

Bedroom 1 (4.29m x 2.64m)

UPVC double glazed window to the rear aspect. Central heating radiator.

Bedroom 2 (3.38m x 2.46m)

UPVC double glazed window to the front aspect. Central heating radiator.

Bedroom 3 (1.65m x 2.31m)

UPVC double glazed window to the front aspect. Central heating radiator.

Shower Room (1.68m x 2.46m)

UPVC double glazed window to the side aspect. Fitted with shower cubicle, hand wash basin and wc. Chrome heated towel rail.

First Floor Landing

UPVC double glazed window to the side aspect. Storage cupboard.

External

To the front is a low maintenance pebbled garden with block paved driveway offering ample parking for several cars. To the rear is a fence enclosed lawned and decked garden with garage.

Garage

Up and over door to the front.

Important note to purchasers:

We endeavour to make our sales particulars accurate and reliable, however, they do not constitute or form part of an offer or any contract and none is to be relied upon as statements of representation or fact. Any services, systems and appliances listed in this specification have not been tested by us and no guarantee as to their operating ability or efficiency is given. All measurements have been taken as a guide to prospective buyers only, and are not precise. Please be advised that some of the particulars may be awaiting vendor approval. If you require clarification or further information on any points, please contact us, especially if you are traveling some distance to view. Fixtures and fittings other than those mentioned are to be agreed with the seller.

/8

Floor Plans

Property Location

Marketed by Reeds Rains



By submitting this form, you accept our Terms of Use.

Disclaimer Property descriptions and related information displayed on this page are marketing materials provided by Reeds Rains. estateagents365.uk does not warrant or accept any responsibility for the accuracy or completeness of the property descriptions or related information provided here and they do not constitute property particulars. Please contact Reeds Rains for full details and further information.