Detached house for sale in Leeds LS15, 4 Bedroom

Leeds, Leeds, UK

Quick Summary

Property Type:
Detached house
Status:
For sale
Price
£ 495,000
Beds:
4
County
West Yorkshire
Town
Leeds
Outcode
LS15
Location
Church Farm View, Barwick In Elmet, Leeds, West Yorkshire LS15
Marketed By:
Dacre Son & Hartley - Wetherby
Posted
2024-04-19
LS15 Rating:





More Info?
Please contact Dacre Son & Hartley - Wetherby on 01937 205831 or Request Details

Property Description

Location


This unique detached family home has its origins dating back to the historic Church Farm in the centre of Barwick in Elmet immediately opposite All Saints Church.

The property was developed in 1983 and has been subsequently extended now providing flexible accommodation with gas fired heating, hardwood effect Pvcu double glazing and solid oak flooring throughout all reception areas.

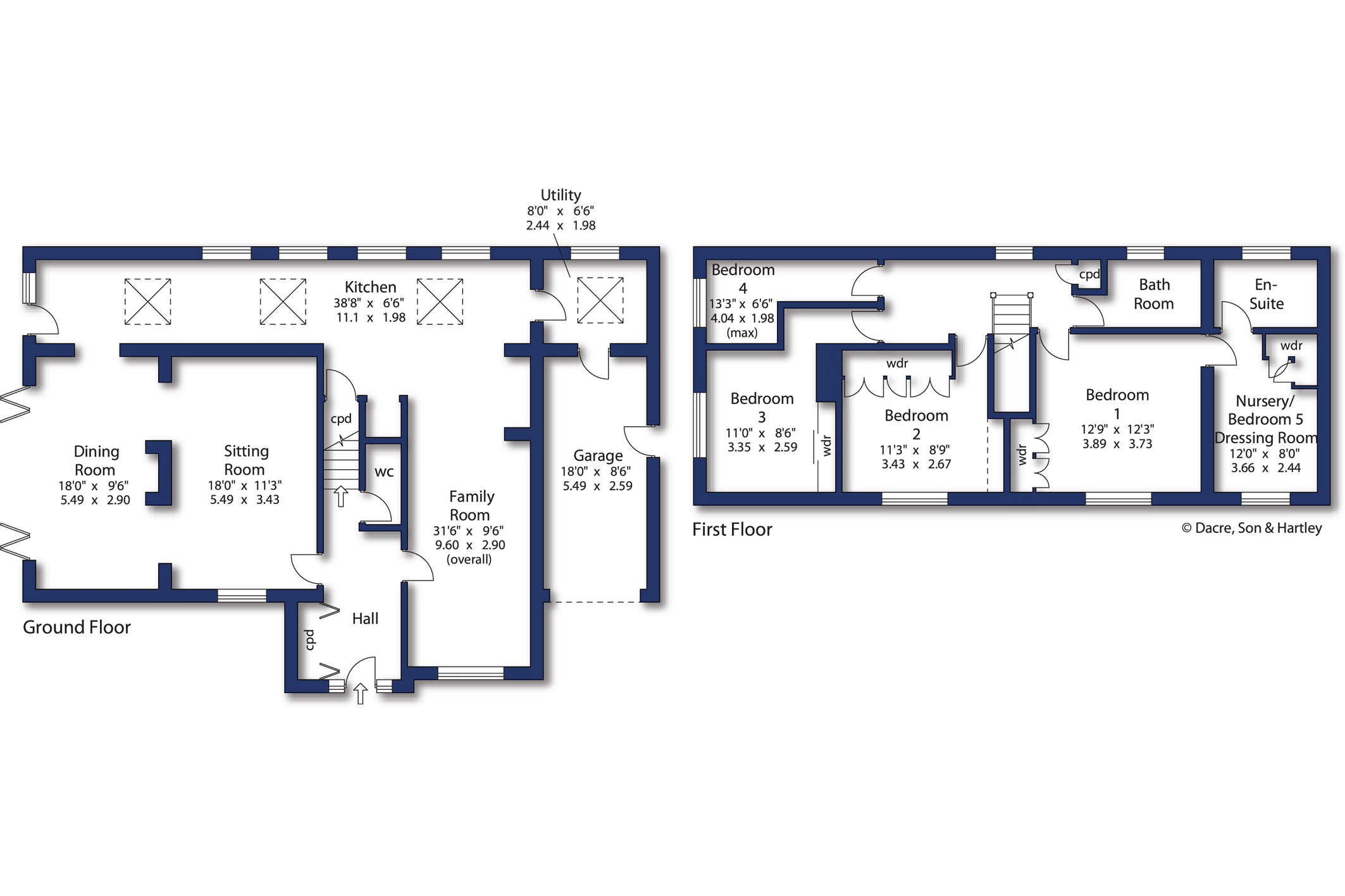
A central hall with cloakroom leads to a sitting room with multi fuel stove and a dining room with bifold doors to gardens. A cleverly designed family room combines with a full-width kitchen to create a unique living and entertaining space with extensive work surfaces, Belfast sink, island unit, Aga (64 series with electric oven and gas hob) and finally a separate utility room.

The master bedroom has its own dressing room/nursery bedroom and en-suite shower room, whilst three further family bedrooms are served by a house bathroom. There is visitor parking to the front of a garage with remote controlled door and private fully enclosed lawned gardens adjoin seating areas with external power and lighting with similar facilities to a timber garden store.

Barwick in Elmet remains a highly sought after village due to its strong community spirit and excellent shops and other amenities.


Directions


From Wetherby travel south on the A1 and take the A64 in the direction of Leeds turning left at the Fox and Grapes Public House, signposted to Barwick in Elmet. Enter the village along Potterton Lane and when approaching the centre of the village the courtyard will be identified immediately opposite the church.


Floor Plans

Property Location

Marketed by Dacre Son & Hartley - Wetherby


By submitting this form, you accept our Terms of Use.

Disclaimer Property descriptions and related information displayed on this page are marketing materials provided by Dacre Son & Hartley - Wetherby. estateagents365.uk does not warrant or accept any responsibility for the accuracy or completeness of the property descriptions or related information provided here and they do not constitute property particulars. Please contact Dacre Son & Hartley - Wetherby for full details and further information.