Detached house for sale in Hove BN3, 3 Bedroom

Hove, Hove, UK

Quick Summary

Property Type:
Detached house
Status:
For sale
Price
£ 650,000
Beds:
3
County
East Sussex
Town
Hove
Outcode
BN3
Location
The Droveway, Hove, East Sussex BN3
Marketed By:
HW Estate Agents
Posted
2024-04-09
BN3 Rating:





More Info?
Please contact HW Estate Agents on 01273 283460 or Request Details

Property Description

Potential | Hove Park
Situated moments from Hove Recreation Ground and Dyke Road is this detached house on The Droveway, Hove. The property is in need of modernisation throughout, and would make a great project for anyone looking to put their own stamp on the property.

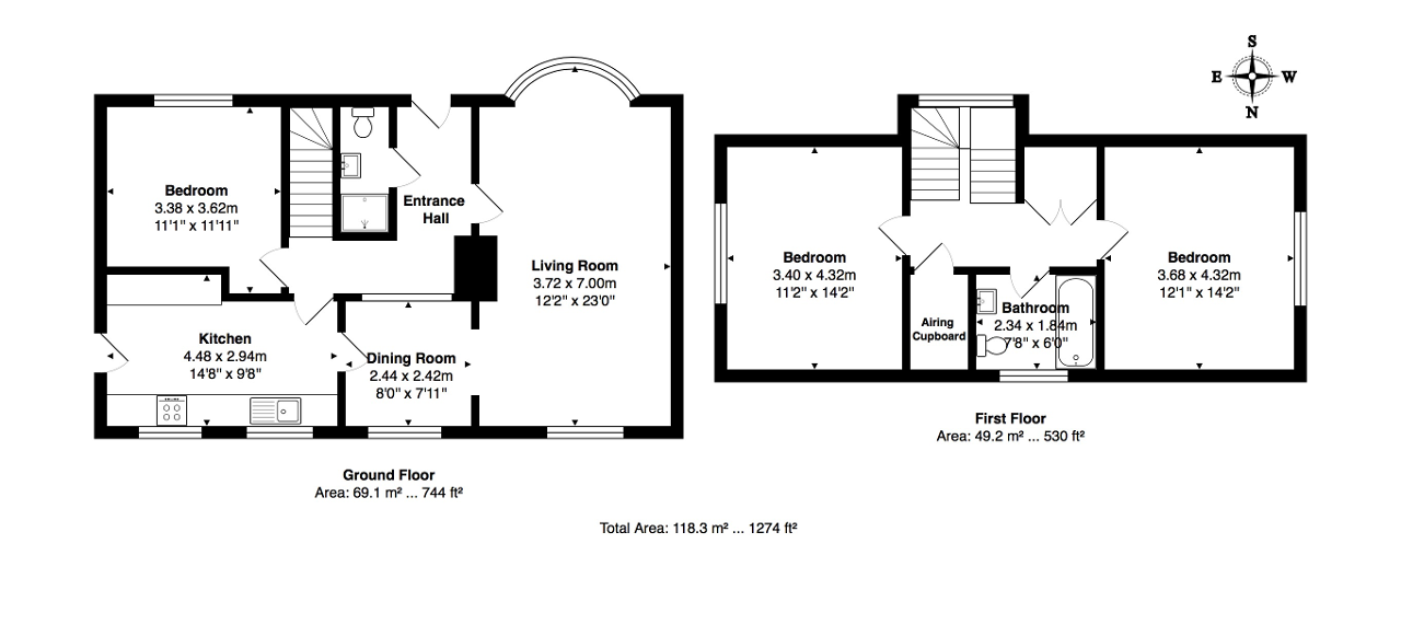
A path leads you through the mature front garden to the front door, upon entering the property you are met with a spacious entrance hall giving access to the L shape living room that looks over the front and rear gardens. There is a further reception room which could be used as a third bedroom. Next is the kitchen which requires modernisation, there is a door at the end of the kitchen which gives access to the mature garden and garage.

Heading up to the first floor you are immediately struck by the light that flows through the large south facing window from the landing. There are two double bedrooms at either end of the property and a large family bathroom in the middle. There is also ample storage a large loft space.

Transport | Hove Train Station 0.7 miles

schools | Aldrington CofE | Hove Park | Lancing Prep College

Located in the popular Hove Park area, giving easy access to the A27, M25, Gatwick and London via car. The area is increasingly popular due to the close proximity of local parks, such as Hove Park and Hove Recreation Ground as well as, numerous good schools including Blatchington Mill and Hove Park Secondary School.

This property is offered with no on going chain and viewing is highly recommended.


Floor Plans

Property Location

Marketed by HW Estate Agents


By submitting this form, you accept our Terms of Use.

Disclaimer Property descriptions and related information displayed on this page are marketing materials provided by HW Estate Agents. estateagents365.uk does not warrant or accept any responsibility for the accuracy or completeness of the property descriptions or related information provided here and they do not constitute property particulars. Please contact HW Estate Agents for full details and further information.