Detached house for sale in Heywood OL10, 3 Bedroom

Heywood, Heywood, UK

Quick Summary

Property Type:
Detached house
Status:
For sale
Price
£ 270,000
Beds:
3
Baths:
1
Recepts:
1
County
Greater Manchester
Town
Heywood
Outcode
OL10
Location
Rochdale Road East, Heywood OL10
Marketed By:
YOPA
Posted
2024-04-30
OL10 Rating:





More Info?
Please contact YOPA on 01322 584475 or Request Details

Property Description



Yopa are delighted to bring to market this stone built Victorian lodge house built in the late 1800's.

The property offers flexible accommodation set over 2 levels with 2 generous ground floor bedrooms and 2 upstairs bedrooms, this attractive property with mullion arched windows and doors is situated on a corner plot within an attractive wooded area, within a short distance of motorway network access and within easy walking distance of local primary and secondary schools.

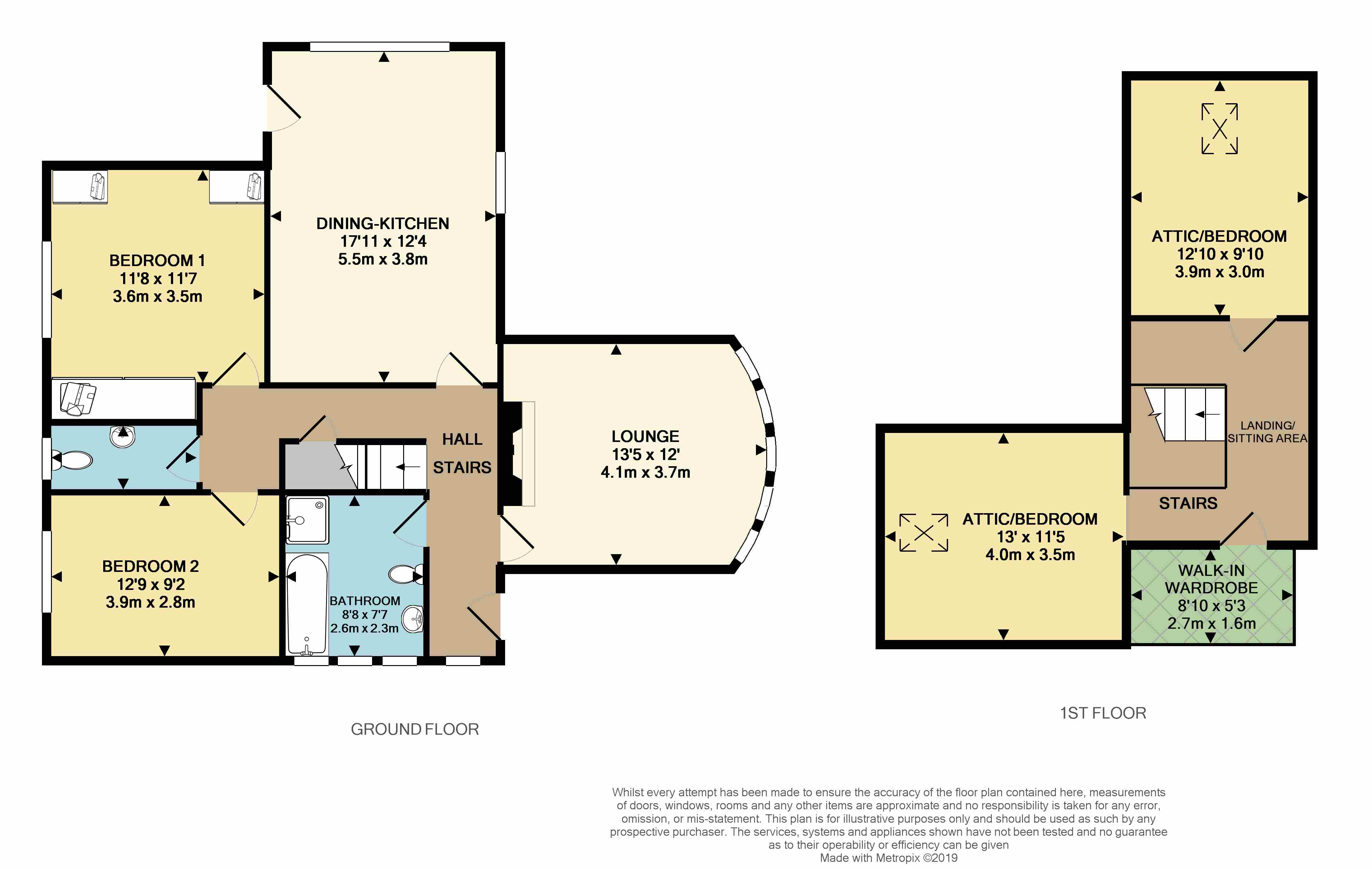
The property briefly comprises of, entrance hallway with feature arched front door and plaque, modern laminate flooring and attractive spindled staircase with storage under, cloakroom with guest WC and washbasin, large family lounge with large bow bay with mullion windows and cast iron feature with living flame gas fire, spacious dining-kitchen, stunning oak units and a range of integrated appliances, a generous double bedroom currently being used as another family room by the current owners, master bedroom with built in wardrobes, modern four piece family bathroom suite comprising bath, shower cubicle with plumbed-in shower, half-tiled walls and mullion windows.

The first floor features a landing area ideal as small sitting area with spindled balustrade, walk-in wardrobe/storage space, with shelving and hanging space, 2 generous sized bedrooms with Velux skylights, laminate flooring and access to eaves for storage.

Externally is a large detached double garage with electric door remote controlled, alarmed, multiple power points and plumbing facilities.

Large double gates from the side lane lead to a good sized block-paved courtyard providing parking for up to 6 cars.

Early viewing is essential to appreciate all on offer with this one off property....

(Dimensions on floor plan)

EPC band: E

Floor Plans

Property Location

Marketed by YOPA


By submitting this form, you accept our Terms of Use.

Disclaimer Property descriptions and related information displayed on this page are marketing materials provided by YOPA. estateagents365.uk does not warrant or accept any responsibility for the accuracy or completeness of the property descriptions or related information provided here and they do not constitute property particulars. Please contact YOPA for full details and further information.