Detached house for sale in Hartfield TN7, 3 Bedroom

Hartfield, Hartfield, UK

Quick Summary

Property Type:
Detached house
Status:
For sale
Price
£ 825,000
Beds:
3
Baths:
2
Recepts:
2
County
East Sussex
Town
Hartfield
Outcode
TN7
Location
Withyham, Hartfield TN7
Marketed By:
Belvoir - Tunbridge Wells
Posted
2024-04-01
TN7 Rating:





More Info?
Please contact Belvoir - Tunbridge Wells on 01892 333958 or Request Details

Property Description

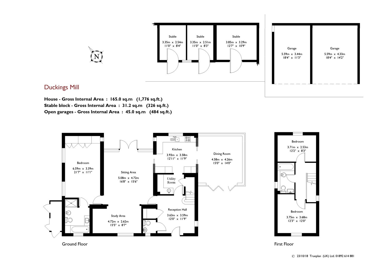
With a floor area of c 165 sq m, Duckings Mill House offers flexible and spacious living in a rural setting with the benefit of contemporary features. Offering vacant possession this stunning 3-bedroom property has been built and finished to an extremely high specification and is accessible down a private driveway with an electric five bar gate.

Living Space

The accommodation itself comprises a luxury conservatory fitted with an air conditioning unit to ensure an ambient temperature throughout the year and would make the ideal dining room with underfloor heating and LED lights under the window sills. Through oak sliding doors can be found a beautiful duck-egg blue kitchen with integrated white goods and marble surfaces, all with an exceptional finish. The main reception is incredible with its huge double aspect and a whole wall of windows and doors out to a patio. The wonderful vaulted ceiling benefits from Velux windows which mechanically open and which have integrated rain sensors, closing the windows at the first few drops! There is also a wood burner and a further area that could be used as a study area, dining space or play area. There is the added bonus of a sound system which runs throughout the downstairs of the property.

Kitchen/Utility

The impressive entrance hall has a tiled floor which continues through the utility area, kitchen and conservatory. As you go through the front door there is a guest cloakroom and large storage cupboard housing the fuse boards, alarms controls and heating systems. From here you can access the utility room which includes a washing machine, an integrated freezer, a separate sink and a range of base units with shelving above. This leads into the spacious kitchen with an abundance of base and wall units together with fully integrated appliances including a Bosch dishwasher, Neff oven, microwave and hob, a tall fridge freezer and a tumble dryer.

Sleeping Space

The large master bedroom, with wooden floor, can be found on the ground floor and fitted wardrobes and a built-in chest of drawers run along one wall. A door leads to a good sized en-suite bathroom complete with shower, a bidet, a bath and a sink with storage cupboards and open shelves. Upstairs are 2 further double bedrooms, with high ceilings, both decorated with a neutral palette and between them a family bathroom containing a white suite complete with a shower over the bath.

Outside

The driveway runs at the back of the house and slopes down to the property and gardens providing ample parking. Outside, to the front, is a large south-facing patio area and lawns. A path continues around the side and rear of the property leading to steps rising to the top of the driveway which provide pedestrian access. Adjacent to the main house, there are original dry stables which provide a storage facility together with a large garage area providing covered parking for two cars.

Location

Duckings Mill is situated in the delightful village of Withyham which is within the High Weald Area of Outstanding Natural Beauty and adjacent to the wonderful Ashdown Forest. The village pub, The Dorset Arms, is a short walk away and has a high quality restaurant. There is also an historic church, a popular primary school, a cricket club and a village hall.

Nearby Hartfield is known as Winnie The Pooh country and has a general store, tea rooms and a gift shop. In Crowborough c 5 miles away there is a Waitrose and a Lidl and the property is ideally situated for commuting to the larger towns of East Grinstead (c 9 miles) and Tunbridge Wells (c 7 miles) which both offer a wide selection of shops, restaurants and entertainment options as well as direct train services to London.

Services

The underfloor heating and water is provided via an air-source heat pump. The property will be connected to mains water whilst sewerage is provided by a Klargester processing plant. The house is also protected by a Chubb fire and security system.

Transport Links

There are fast direct train services to London from Ashurst (c 3.5 miles) and Tunbridge Wells (7 miles).

The A21 is accessible to the north via the A26 at Southborough, and provides a direct link to the M25 London orbital motorway and thereby the national motorway network, Heathrow Airport and the Channel Tunnel terminus. Gatwick Airport lies about 18 miles to the northwest via the A264/M23.

Planning

Planning was previously obtained to increase the size of Duckings Mill House to increase the size of the first floor to accommodate additional bedrooms.

There may be potential to repurpose the existing stables as an annex subject to planning approval

Planning permission has been granted to demolish a barn on adjacent land and build a new dwelling

Disclaimer

These particulars are issued in good faith but do not constitute representations of fact or form part of any offer or contract. The matters referred to in these particulars should be independently verified by prospective buyers or tenants. Neither Belvoir nor any of its employees or agents has any authority to make or give any representation or warranty whatever in relation to this property

Floor Plans

Property Location

Marketed by Belvoir - Tunbridge Wells



By submitting this form, you accept our Terms of Use.

Disclaimer Property descriptions and related information displayed on this page are marketing materials provided by Belvoir - Tunbridge Wells. estateagents365.uk does not warrant or accept any responsibility for the accuracy or completeness of the property descriptions or related information provided here and they do not constitute property particulars. Please contact Belvoir - Tunbridge Wells for full details and further information.