Detached house for sale in Glenrothes KY7, 4 Bedroom

Glenrothes, Glenrothes, UK

Quick Summary

Property Type:
Detached house
Status:
For sale
Price
£ 230,000
Beds:
4
Baths:
3
Recepts:
2
County
Fife
Town
Glenrothes
Outcode
KY7
Location
High Street, Markinch, Glenrothes, Fife KY7
Marketed By:
Slater Hogg & Howison - Glenrothes
Posted
2019-05-03
KY7 Rating:





More Info?
Please contact Slater Hogg & Howison - Glenrothes on 01592 508843 or Request Details

Property Description

This unique and charming detached cottage style villa is centrally located within ever popular Markinch. Ideally situated for all local amenities including local shopping, restaurants, schools etc and with the town of Glenrothes providing additional services found nearby. The property benefits from close proximity to the A92 trunk road providing road links throughout Fife and also to Markinch mainline train station, making this an ideal home for commuting to Edinburgh, Dundee and beyond.
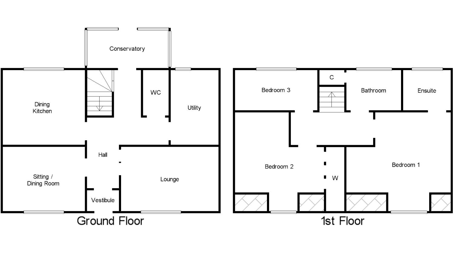
The property is beautifully presented and offers traditional but modern living accommodation over two floors. The rooms are of generous proportions and comprise of entrance vestibule with attractively tiled floor and glazed door leading in to a welcoming reception hallway which in-turn provides access to the ground floor accommodation. The lounge is entered from the hall via double doors and has a front facing deep set window, attractive timber effect flooring, ceiling rose, cornices and alcove. The second reception room is also front facing with deep set window and alcove and could be utilised as an additional sitting room, formal dining room or as a 4th bedroom. The conservatory is located to the rear of the property and is glazed to 3 sides with a door leading to the rear garden. The dining kitchen is to the rear and is fitted to 3 sides with base and wall units, complimentary work surfaces and benefits from under floor heating, integral hob, oven and extractor hood and with ample space for other free standing appliances and for dining. The utility room is of a good size and again is fitted with base and wall units, sink and space for appliances. The cloakroom is fitted with a WC & wash hand basin. A staircase leads to the upper landing providing access to the bedrooms and bathroom. The master bedroom has a dormer window to the front, ample space for free standing furniture and a door leads to the modern and contemporary en-suite shower room fitted with WC, wash hand basin, quadrant shower cubicle and under floor heating. Bedroom two is also front facing with a dormer window and benefits from fitted wardrobes. Bedroom three has a rear facing dormer window and again benefits from a fitted wardrobe. Finally, the family bathroom is of a generous size and is fitted with a 4-piece suite comprising of WC, wash hand basin, bidet and bath.
Externally, there is a driveway located to the side of the property providing parking for 3 vehicles and a gate leads in to the fully enclosed rear garden. The garden is beautifully maintained and is established with a mix of lawns, shrub borders and seating areas.
The property benefits from double glazing and gas central heating and early viewing is highly recommended.

• Detached Villa Located Centrally Within Popular Markinch
• Entrance Vestibule, Hall & Cloakroom/WC
• Lounge, Dining/Sitting Room & Conservatory
• 3 Double Bedrooms
• Family Bathroom & Master En-Suite Shower Room
• Garden & Drive Parking
• Double Glazing & Gas Central Heating
• EER Band D


Entrance Vestibule

Hall

Lounge14'1" x 13'9" (4.3m x 4.2m).

Dining/Sitting Room12'3" x 11'7" (3.73m x 3.53m).

Conservatory10'4" x 5'9" (3.15m x 1.75m).

Breakfasting Kitchen13'8" x 12'6" (4.17m x 3.8m).

Utility Room10'10" x 6'3" (3.3m x 1.9m).

Cloakroom/WC6'2" x 4'7" (1.88m x 1.4m).

Master Bedroom11'11" x 8'5" (3.63m x 2.57m).

En-Suite Shower Room8'9" x 6' (2.67m x 1.83m).

Bedroom 113'11" (4.23m) x 11'5" (3.48m) (13'6" (4.11m) into dormer).

Bedroom 212'8" x 9'4" (3.86m x 2.84m).

Family Bathroom8'10" x 8'4" (2.7m x 2.54m).

Garden

Drive Parking


Floor Plans

Property Location

Marketed by Slater Hogg & Howison - Glenrothes



By submitting this form, you accept our Terms of Use.

Disclaimer Property descriptions and related information displayed on this page are marketing materials provided by Slater Hogg & Howison - Glenrothes. estateagents365.uk does not warrant or accept any responsibility for the accuracy or completeness of the property descriptions or related information provided here and they do not constitute property particulars. Please contact Slater Hogg & Howison - Glenrothes for full details and further information.