Detached house for sale in Dursley GL11, 2 Bedroom

Dursley, Dursley, UK

Quick Summary

Property Type:
Detached house
Status:
For sale
Price
£ 190,000
Beds:
2
County
Gloucestershire
Town
Dursley
Outcode
GL11
Location
Parsons Close, Dursley GL11
Marketed By:
Bennett Jones
Posted
2018-10-09
GL11 Rating:





More Info?
Please contact Bennett Jones on 01453 799551 or Request Details

Property Description

Immaculately presented Coach House - on town outskirts with splendid views - two double bedrooms (master with en-suite) - cloakroom - lounge/dining room - kitchen area - family bathroom - good sized garage plus parking space - pleasant communal garden area - gas central heating - double glazed - energy rating c

Description

An early viewing is recommended of this well presented Coach House, situated on the edge of town with views from the front across to hillsides and benefiting from pleasant communal garden area with facilities for barbeque or just relaxing. The well proportioned accommodation briefly comprises; an open plan lounge/dining room with an extensively fitted kitchen area and having pleasant views from both areas across to the surrounding hillsides, there are two double bedrooms (master with en-suite shower) and a well fitted family bathroom. The residence is beautifully presented and benefits from gas central heating and double glazing throughout, also it has an integral garage with storage and further parking to the front of the garage.

Situation

The property is situated towards the edge of the town but is still within easy reach of Dursley town centre which offers a Sainsbury's supermarket, leisure centre, retail shops, doctors, dentists and library. There are beautiful walks along the Cotswold Way which are within easy reach of the property. With good commuting links to Bristol, Gloucester, Cheltenham and Bath via the A38 and M5 motorway network. There is a mainline train station at Box Road, Cam, which enables commuting to London.

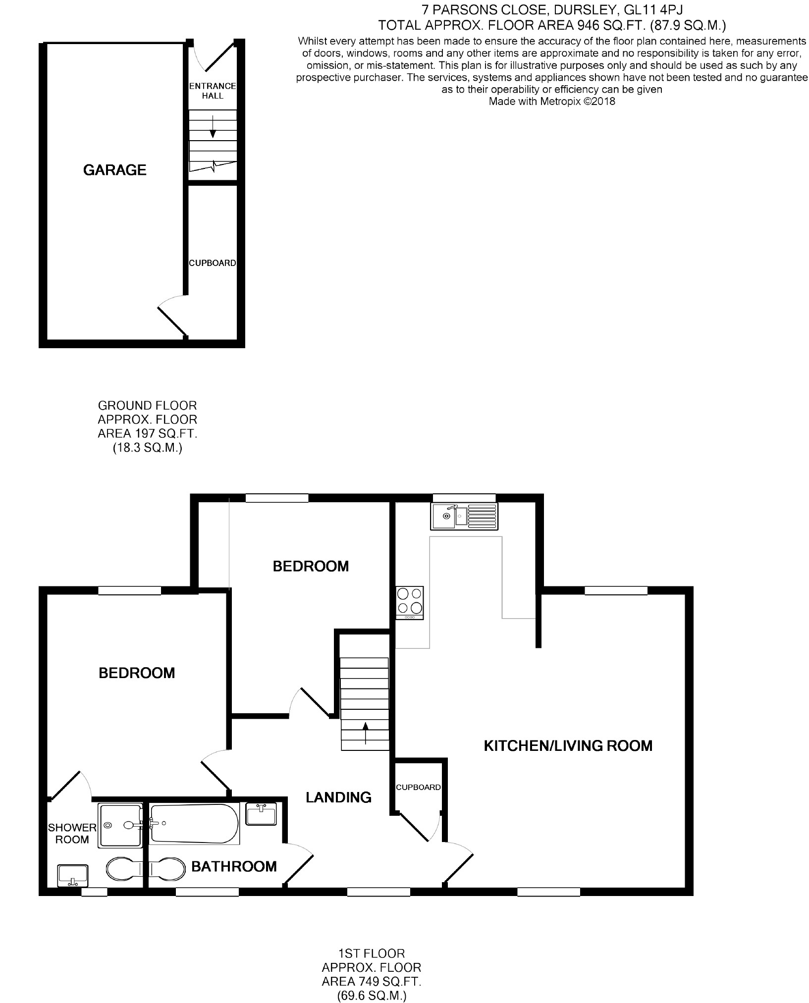
Accommodation

(Please note that our room sizes are quoted in metres to the nearest one hundredth of a metre on a wall to wall basis. The imperial equivalent (included in brackets) is only intended as an approximate guide).

Entrance

With double glazed door, radiator, stairs to first floor, living accommodation.

Landing

With shelved storage cupboard, access to insulated and boarded loft space, double glazed window.

Lounge/Dining Room (5.32 max. X 4.38m (17'5" max. X 14'4"))

With two radiators, two double glazed windows giving dual aspect to front and rear, telephone point.

Kitchen Area (2.55m x 2.46m (8'4" x 8'1"))

Fitted with a range of wall and floor units with one and a half bowl white composite sink unit with mixer tap, built-in washing machine, fan assisted electric oven, four burner gas hob with extractor hood over, ample work surfaces, tiled splash backs, double glazed window, cupboard housing Ideal combi gas boiler (fitted within the last three years).

Bedroom One (3.70m x 3.26m (12'2" x 10'8"))

With double glazed window and with a stylish range of free-standing wardrobes with drawers under (these wardrobes are available if required by separate negotiation), radiator.

En-Suite Shower Room

With fully tiled shower cubicle, low level wc and vanity wash hand basin, tiled flooring, radiator, double glazed window, extractor fan, ladder radiator, shaver point.

Bedroom Two (3.84m reducing to 2.39m x 2.91m (12'7" reducing to 7'10" x 9'7"))

With shelved hanging recess, double glazed window to front, radiator.

Bathroom

Fitted with white suite of panelled bath, low level wc and vanity wash hand basin, tiled splash backs, towel rail, shaver point, double glazed windows, extractor fan, non-slip flooring.

Outside

There is an integral garage with up-and-over door 5.32m x 2.48m with light and power, and a useful under stairs storage cupboard with light. There is parking to the front of the garage and outside light. The pleasant well kept communal garden area is ideal for barbeques or just to enjoy sitting outside and also provides a further storage area and washing line facilities.

Agent's Notes

Tenure: Freehold
Council Tax Band: 'B' £1,441.25 payable.
There is a monthly residents fee of £20.00 per month to cover any communal improvements or repairs.

Viewings

By appointment with the owner's sole agents as over.

Misrepresentation act 1967. Messrs. Bennett Jones for themselves and for the Vendors of this property whose agents they are, give notice that: All statements contained in their particulars as to this property are made without responsibility on the part of the Agents or Vendors. None of the statements contained in their particulars as to this property is to be relied on as a statement or representation of fact. Any intending purchasers must satisfy himself by inspection or otherwise as to the correctness of the statements contained in these particulars. The Vendors do not make or give and neither the Agents nor any person in their employment has any authority to make or give any representation or warranty whatever in relation to this property.

Floor Plans

Property Location

Marketed by Bennett Jones



By submitting this form, you accept our Terms of Use.

Disclaimer Property descriptions and related information displayed on this page are marketing materials provided by Bennett Jones. estateagents365.uk does not warrant or accept any responsibility for the accuracy or completeness of the property descriptions or related information provided here and they do not constitute property particulars. Please contact Bennett Jones for full details and further information.