Detached house for sale in Dollar FK14, 4 Bedroom

Dollar, Dollar, UK

Quick Summary

Property Type:
Detached house
Status:
For sale
Price
£ 320,000
Beds:
4
Baths:
2
Recepts:
3
County
Clackmannanshire
Town
Dollar
Outcode
FK14
Location
The Ness, Dollar, Clackmannanshire FK14
Marketed By:
Clyde Property, Stirling
Posted
2024-04-07
FK14 Rating:





More Info?
Please contact Clyde Property, Stirling on 01786 392956 or Request Details

Property Description

HD Property Video Available A beautifully presented, bright and spacious four bedroom detached family home situated within a quiet residential enclave of Dollar whilst benefiting from an integrated double size garage and south facing rear gardens with decking.
This charming home enjoys a convenient situation within easy reach of local shops, churches and leisure activities. Dollar Academy is synonymous with first class education and is within easy walking distance. The major city of Stirling abounds with a wide variety of shops including the well known Thistles shopping centres. An excellent road network and a regular bus service provides swift access throughout the district with Glasgow, Edinburgh and Perth within commuting distance. EPC = D

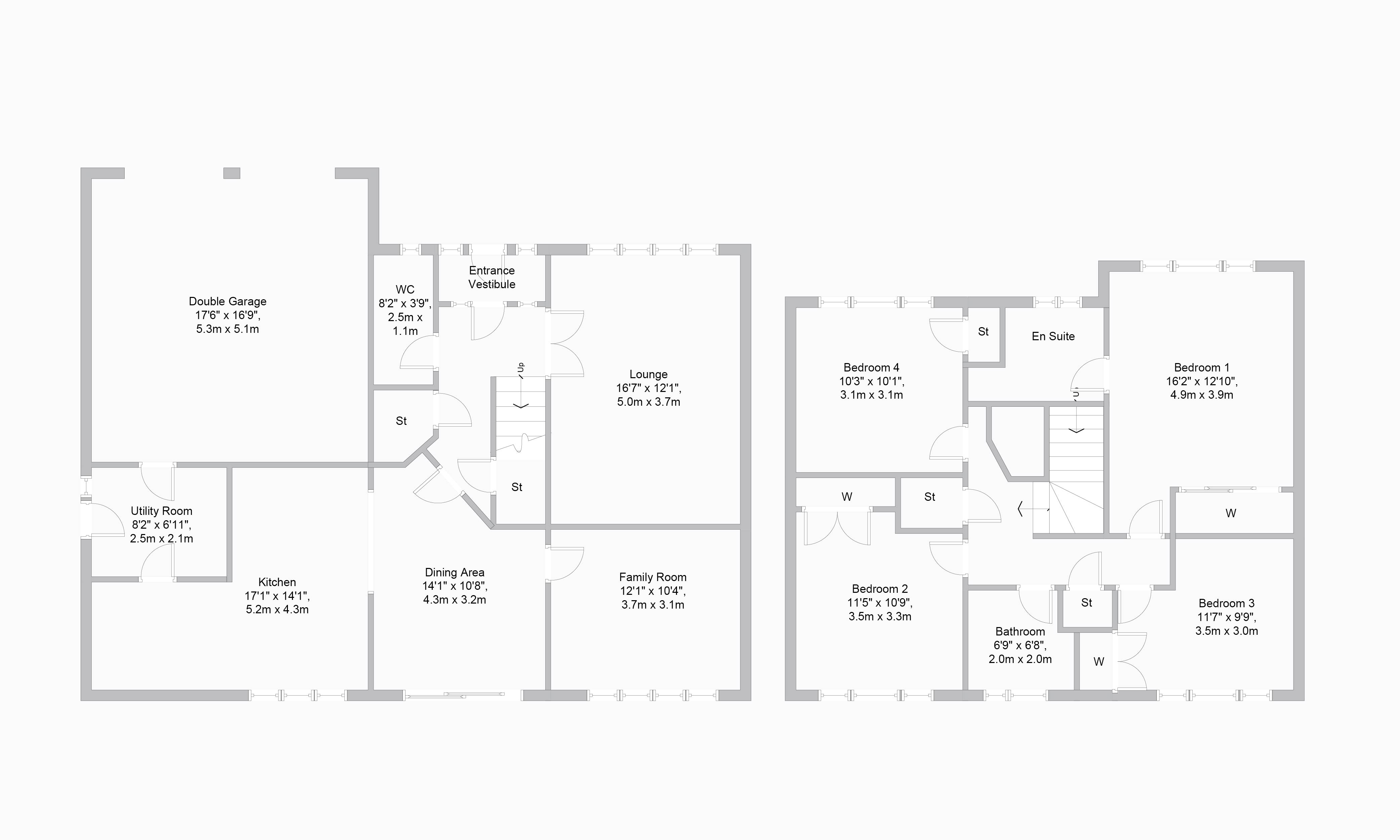
Floor Plans

Property Location

Marketed by Clyde Property, Stirling


By submitting this form, you accept our Terms of Use.

Disclaimer Property descriptions and related information displayed on this page are marketing materials provided by Clyde Property, Stirling. estateagents365.uk does not warrant or accept any responsibility for the accuracy or completeness of the property descriptions or related information provided here and they do not constitute property particulars. Please contact Clyde Property, Stirling for full details and further information.