Detached house for sale in Bishop's Stortford CM22, 4 Bedroom

Bishop's Stortford, Bishop's Stortford, UK

Quick Summary

Property Type:
Detached house
Status:
For sale
Price
£ 695,000
Beds:
4
Baths:
3
Recepts:
2
County
Hertfordshire
Town
Bishop's Stortford
Outcode
CM22
Location
Queens Head Yard, Sheering CM22
Marketed By:
Intercounty - Sawbridgeworth
Posted
2024-05-17
CM22 Rating:





More Info?
Please contact Intercounty - Sawbridgeworth on 01279 246656 or Request Details

Property Description



A newly constructed and nearing completion, four bedroom, detached family home situated in the beautiful village of Sheering. The property offers bright and spacious rooms throughout, driveway parking, underfloor heating, a West facing rear garden and a 10 year NHBC guarantee. The accommodation comprises a large entrance hall leading to living room with wood burning stove, kitchen dining room, study, orangery and WC, ground floor bedroom with en-suite shower room. Whilst on the first floor there are three double bedrooms and two further bathrooms. The rear of the property has a large West facing garden which is mainly laid to lawn and a large paved area. The front has a large driveway with gated access to the rear. Awaiting EPC.

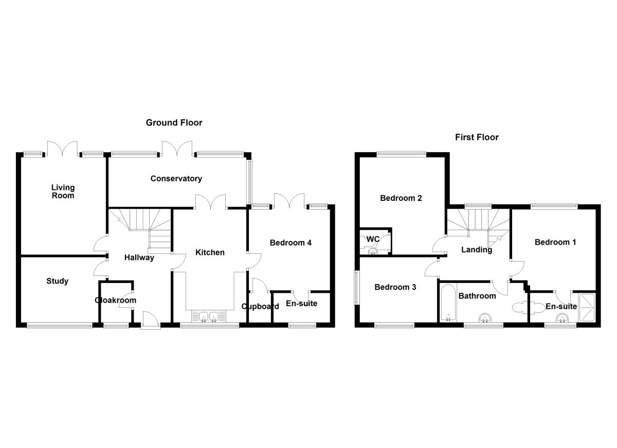
Entrance Hall

Cloakroom

Living Room (3.43m x 3.94m)

Kitchen / Dining Room (2.95m x 4.60m)

Study (2.64m x 3.12m)

Conservatory (2.01m x 5.56m)

Bedroom 4 (3.28m x 3.28m)

En-Suite Shower Room

First Floor Landing

Bedroom 1 (3.38m x 3.38m)

En-Suite Bathroom

Bedroom 2 (3.43m x 3.96m)

Bedroom 3 (2.64m x 3.15m)

Family Bathroom

Outside

Additional Information

The village of Sheering lies 2.8 miles from Harlow and 4.5 miles from Bishops Stortford, both which offer extensive shopping, transport and leisure facilities, plus a good choice of cafes, bars and restaurants. The village itself consists of approximately 350 houses and provides two pubs, pre-school and primary schooling, a hairdressers, sandwich shop and a general store with post office. Bus services connect to Harlow and Chelmsford.

Important note to purchasers:

We endeavour to make our sales particulars accurate and reliable, however, they do not constitute or form part of an offer or any contract and none is to be relied upon as statements of representation or fact. Any services, systems and appliances listed in this specification have not been tested by us and no guarantee as to their operating ability or efficiency is given. All measurements have been taken as a guide to prospective buyers only, and are not precise. Please be advised that some of the particulars may be awaiting vendor approval. If you require clarification or further information on any points, please contact us, especially if you are traveling some distance to view. Fixtures and fittings other than those mentioned are to be agreed with the seller.

/4

Floor Plans

Property Location

Marketed by Intercounty - Sawbridgeworth



By submitting this form, you accept our Terms of Use.

Disclaimer Property descriptions and related information displayed on this page are marketing materials provided by Intercounty - Sawbridgeworth. estateagents365.uk does not warrant or accept any responsibility for the accuracy or completeness of the property descriptions or related information provided here and they do not constitute property particulars. Please contact Intercounty - Sawbridgeworth for full details and further information.