Detached house for sale in Aylesbury HP18, 5 Bedroom

Aylesbury, Aylesbury, UK

Quick Summary

Property Type:
Detached house
Status:
For sale
Price
£ 489,950
Beds:
5
Baths:
3
Recepts:
2
County
Buckinghamshire
Town
Aylesbury
Outcode
HP18
Location
Kingsfield Park Bramley Road, Aylesbury HP18
Marketed By:
Taylors - Aylesbury Sales
Posted
2024-04-26
HP18 Rating:





More Info?
Please contact Taylors - Aylesbury Sales on 01296 698078 or Request Details

Property Description

* stone worktops * fitted wardrobes in master * integrated fridge/freezer * integrated dishwasher * ceramic floor tiles in kitchen & bathrooms * downlighters in kitchen & bathrooms * outside tap * double height towel rail * garden shed
All as standard!

New Year - New Home

Please call to discuss how we can help you move...

From £391,960 with the help to buy scheme!*
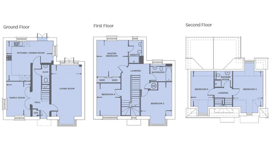
Newly Released! 5 Bedroom Detached Family Home offering living across 3 floor and stands at 1857 sq ft!
Plot 556 has a West Facing Garden and occupies a corner plot.

The accomodation comprises;

Entrance Hall
Through Lounge with Feature Bay & French Doors
Double Doors into Family Room from Hall
Kitchen/Dining Room with French Doors
Cloakroom
Master Bedroom with Ensuite and Fitted Wardrobes
4 additional excellent sized bedrooms
Shower Room
Family Bathroom
Garage

Martin Grant's exclusive new Kingsfield Park development sits at the heart of this idyllic community, bringing a collection of 18 elegant, high-specification family homes which tastefully incorporate aspects of local architecture with Martin Grant's signature superior finishes.

Key Points
•181-acre area of leafy parkland
•18 elegant, high-specification homes
•1 hour away from London by train
•Three schools and a gym, plus recreation areas with cycleways, bridleways and footpaths

*help to buy is subject to terms and conditions full price is 489950
* Stamp Paid fro Owner Occupier only


Floor Plans

Property Location

Marketed by Taylors - Aylesbury Sales


By submitting this form, you accept our Terms of Use.

Disclaimer Property descriptions and related information displayed on this page are marketing materials provided by Taylors - Aylesbury Sales. estateagents365.uk does not warrant or accept any responsibility for the accuracy or completeness of the property descriptions or related information provided here and they do not constitute property particulars. Please contact Taylors - Aylesbury Sales for full details and further information.