Detached house for sale in Aylesbury HP18, 5 Bedroom

Aylesbury, Aylesbury, UK

Quick Summary

Property Type:
Detached house
Status:
For sale
Price
£ 486,950
Beds:
5
Baths:
3
Recepts:
1
County
Buckinghamshire
Town
Aylesbury
Outcode
HP18
Location
Kingsfield Park, Aylesbury HP18
Marketed By:
Countrywide Residential Development - Northampton
Posted
2024-04-07
HP18 Rating:





More Info?
Please contact Countrywide Residential Development - Northampton on 01604 313831 or Request Details

Property Description

The Gallinule is a stunning five bedroom detached property set on the thriving development of Kings Field Park in Aylesbury.

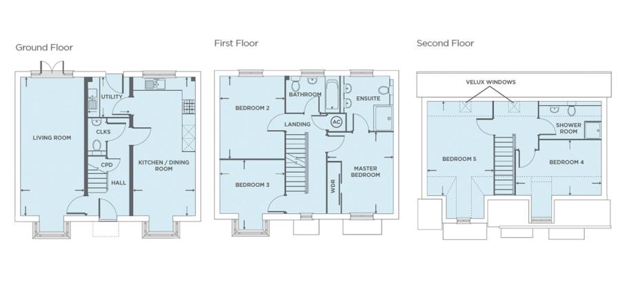
A very good sized 5 bedroom family home offering stylish and modern living across 3 floors;
Ground Floor offers ;
A Welcoming entrance hall with useful storage and a Cloakroom
Through Lounge with Feature Bay and French doors out into the garden
Through Kitchen/Dining with Feature Bay and Utility with Foor into the Garden
The First Floor offers;
Master bedrroom with Fitted Wardrobes and Ensuite
Family Bathrooms
Bedrooms 2 & 3
Second Floor
Bedroom 4 & 5 and an additional Shower Room
this property is finished with a garage

The new community of Berryfields lies on the outskirts of Aylesbury. In this 181-acre area of leafy parkland dotted with houses and apartment buildings, there are local independent shops and services, three schools and a gym; as well as recreation areas with cycleways, bridleways and footpaths.

Berryfields is a gateway to the charming Vale of Aylesbury at the foot of the Chiltern Hills - a protected beauty spot where you'll find dozens of country pubs, pretty market towns and grand country houses. A short drive away is Aylesbury, with its extensive mix of shopping, markets, leisure facilities and culture, while London is just an hour away by train.

Martin Grant's exclusive new Kingsfield Park development sits at the heart of this idyllic community, bringing a collection of elegant, high-specification family homes which tastefully incorporate aspects of local architecture with our signature superior finishes.

Key Points
- Contemporary high specification homes
- Commutable to London in 1 hour
- Superb schooling nearby
- Vast open green spaces to explore
- It's a great time to buy! (Low interest rates and fixed mortgages available)

Martin Grant include some fantastic finishes as standard -


Kitchen


- Integrated fridge/freezer.
- LED low energy recessed ceiling down lighters,
- LED under unit strip lighting,
- Choice of vinyl flooring
- Built-in oven, gas hob, cooker hood, glass splash back behind cooker
- Soft close drawers

Bathrooms & en-suites


-White suite with polished chrome bath fittings & white heated towel rail
- Half height ceramic wall tiling to selected walls
-Tiled shower enclosures (en-suite)
- LED low energy recessed ceiling down lighters

Images shown are examples from our Martin Grant show home.

• Low energy lighting to front porch
• Garden patio area
• Garden cycle shed
• Water Butt
• Outside tap
• Rotary line

Floor Plans

Property Location

Marketed by Countrywide Residential Development - Northampton



By submitting this form, you accept our Terms of Use.

Disclaimer Property descriptions and related information displayed on this page are marketing materials provided by Countrywide Residential Development - Northampton. estateagents365.uk does not warrant or accept any responsibility for the accuracy or completeness of the property descriptions or related information provided here and they do not constitute property particulars. Please contact Countrywide Residential Development - Northampton for full details and further information.