Detached house for sale in Altrincham WA14, 3 Bedroom

Altrincham, Altrincham, UK

Quick Summary

Property Type:
Detached house
Status:
For sale
Price
£ 400,000
Beds:
3
County
Greater Manchester
Town
Altrincham
Outcode
WA14
Location
Stamford Road, Bowdon, Altrincham WA14
Marketed By:
Watersons
Posted
2024-04-12
WA14 Rating:





More Info?
Please contact Watersons on 0161 937 6729 or Request Details

Property Description

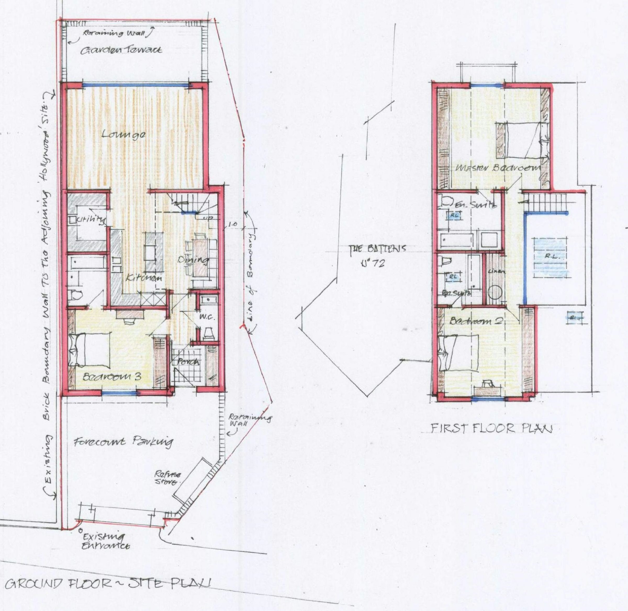
A superb opportunity to purchase A small building plot with planning consent for the construction of A 1800 square foot bespoke detached house in this enormously desirable location in the heart of old bowdon.
Walking distance Hale Village and Altrincham Town Centre, the Metro and Market Quarter.

Arranged over two floors the property will provide accommodation as follows.

Porch. Hall. WC. Living Area. Open Plan Dining Kitchen Utility Room. Three Double Bedrooms. Three En Suite Baths/Showers. One Bedroom and En Suite is positioned to the Ground Floor.

Externally there will be off street Parking and a Courtyard Garden Terrace to the Rear.

End Value estimated at circa £800,000

Full plans are available on request.

Directions:
From Watersons Hale Office proceed along Ashley Road in the direction of Hale Station, proceeding over the level crossing to the traffic lights. Proceed straight over and the property will be found on the left hand side.

Porch
Hall
Ground Floor WC
Lounge
Dining Kitchen
Utility
Bedroom 1
En Suite Bathroom 1
Landing
Bedroom 2
En Suite Bathroom 2
Principal Bedroom 3
En Suite Bathroom 3
Rear of Property
Floor Plan
Town Plan
Street Plan
Site Plan

Floor Plans

Property Location

Marketed by Watersons


By submitting this form, you accept our Terms of Use.

Disclaimer Property descriptions and related information displayed on this page are marketing materials provided by Watersons. estateagents365.uk does not warrant or accept any responsibility for the accuracy or completeness of the property descriptions or related information provided here and they do not constitute property particulars. Please contact Watersons for full details and further information.