Cottage to rent in Taunton TA1, 2 Bedroom

Taunton, Taunton, UK

Quick Summary

Property Type:
Cottage
Status:
To rent
Price
£ 167
Beds:
2
Baths:
1
Recepts:
2
County
Somerset
Town
Taunton
Outcode
TA1
Location
Mount Street, Taunton TA1
Marketed By:
Townsend
Posted
2019-04-24
TA1 Rating:





More Info?
Please contact Townsend on 01823 760799 or Request Details

Property Description

Townsend letting & management are delighted to offer this attractive two double bedroom cottage to the rental market. It is situated in the historic central area of Taunton, a stone's throw from Vivary Park and offers charming, comfortable accommodation.

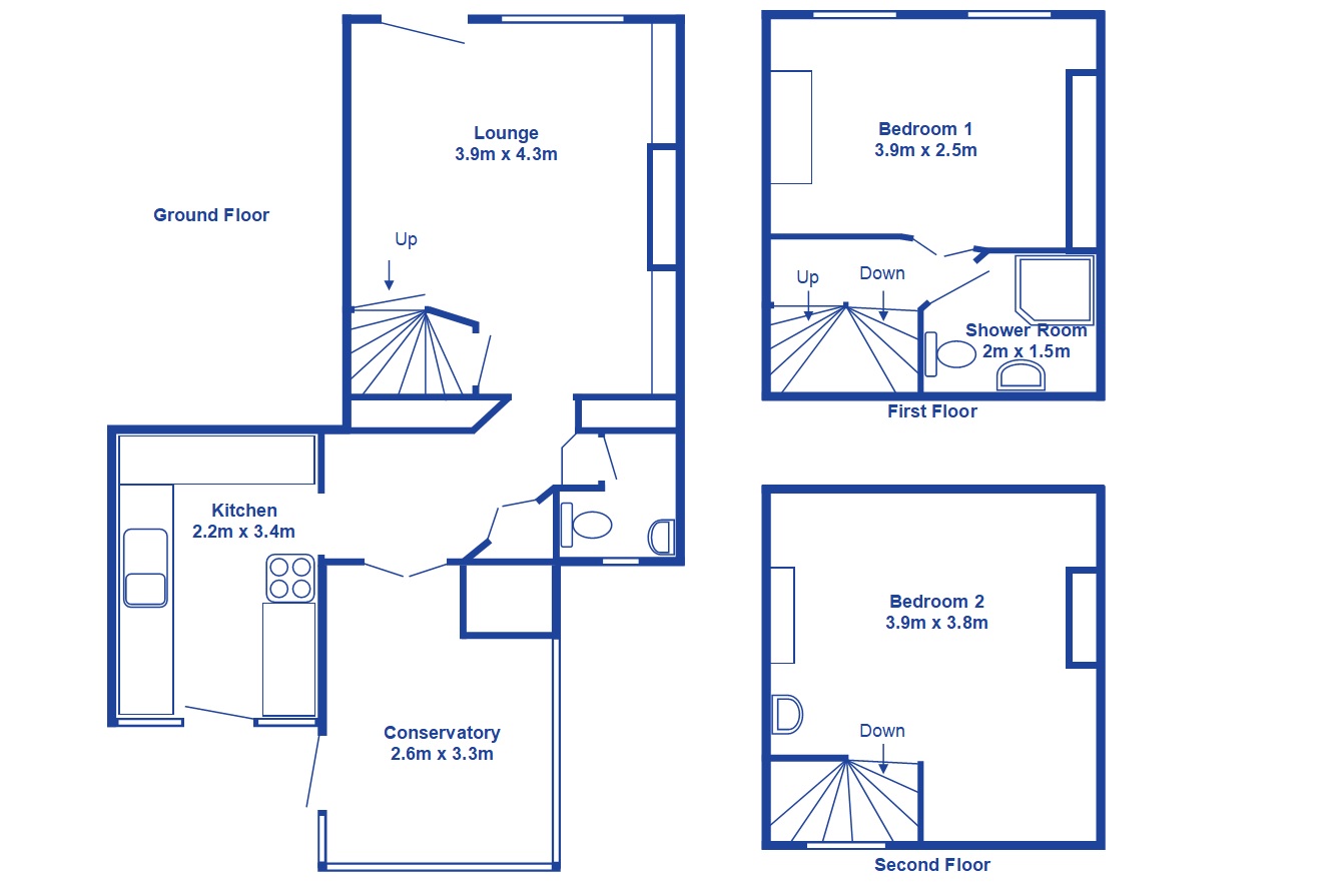
The property is on 3 levels and comprises;

Entrance to lounge with built in storage and wood burner. Through to kitchen to the right at the rear with washing machine, small fridge freezer and electric cooker. Plenty of storage and back door to rear garden/patio. There is a WC plus a lovely sun room with rear access.

From the lounge are narrow stairs up to the first floor with a bright and airy double bedroom with built in storage. There is a bathroom with luxury shower and white sanitary ware.

Going up one further level via steep stairs leads to the second top bedroom with built in storage, a hand wash basin and a Velux skylight window.

Suit professional couple, one well behaved pet considered.

Lounge

kitchen

sun room

bathroom

bedroom 1

bedroom 2

garden

Floor Plans

Property Location

Marketed by Townsend


By submitting this form, you accept our Terms of Use.

Disclaimer Property descriptions and related information displayed on this page are marketing materials provided by Townsend. estateagents365.uk does not warrant or accept any responsibility for the accuracy or completeness of the property descriptions or related information provided here and they do not constitute property particulars. Please contact Townsend for full details and further information.