Bungalow to rent in Cheltenham GL54, 3 Bedroom

Cheltenham, Cheltenham, UK

Quick Summary

Property Type:
Bungalow
Status:
To rent
Price
£ 254
Beds:
3
Baths:
1
Recepts:
2
County
Gloucestershire
Town
Cheltenham
Outcode
GL54
Location
Langley Road, Winchcombe GL54
Marketed By:
Cotswold Lettings & Management
Posted
2018-11-13
GL54 Rating:





More Info?
Please contact Cotswold Lettings & Management on 01242 393887 or Request Details

Property Description

Description

Cotswold Lettings are pleased to present this well-maintained spacious 2/3 bedroom bungalow situated on an elevated plot at the edge of Winchcombe. Accommodation comprises; Entrance Hall, Lounge with Woodburner, Kitchen/Breakfast Room, Conservatory, 3 Double Bedrooms, Family Bathroom and Separate WC. The property also benefits from a lovely enclosed garden offering a high degree of privacy and off-road parking for 2+ cars

Directions

From our office in Vineyard Street, turn left along Gloucester Street. At the Corner Cupboard Inn turn right onto Malthouse Lane, turning left at the roundabout into Back Lane. Continue on into Langley Road, Giles Piece Bungalow will found on the right hand side last but one house at the edge of town

Front Garden

To property sits at an elevated position overlooking neighbouring fields. There is parking for 2+ cars and bedding area. There is a footpath to the front door and rear garden

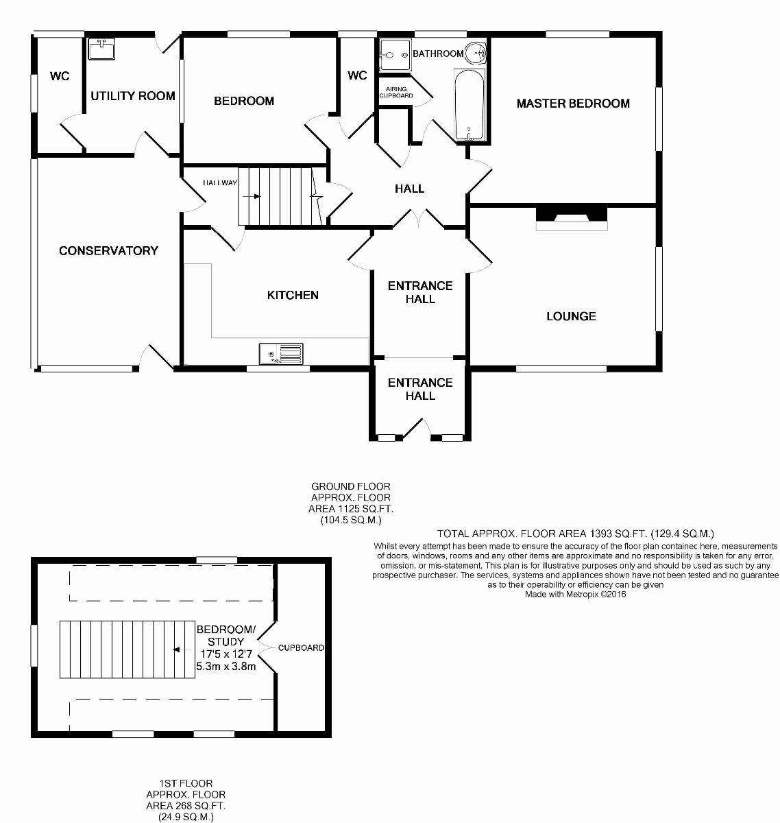
Entrance Hall (1.83m x 4.57m)

15'02 X 6'00. Large bright space with wooden flooring, GCH Radiator, doors to kitchen and lounge, double doors to bedrooms and bathroom

Lounge (3.35m x 3.96m)

13'10 X 11'10. Dual-aspect double-glazed window with views over fields, wooden flooring, woodburner in stone fireplace, GCH radiator

Kitchen/Diner (3.35m x 3.66m)

12'10 X 11'05. Side-aspect double-glazed window, range of eye and base-level units, tiled floor, GCH radiator. Appliances include; electric double-oven cooker, dishwasher, GCH boiler and fridge. Door to conservatory, rear hallway and bedroom 3

Conservatory (3.05m x 4.88m)

16'10 X 10'08. Double-glazed windows to 2 sides, door to garden, tiled floor, GCH radiator. Door to:

Utility (2.13m x 2.13m)

7'04 X 7'00. Tiled floor, GCH radiator, door to side path & garden. Door to:

WC (0.91m x 2.13m)

7'04 X 3'01. Two-piece suite comprising WC and wash basin, tiled floor, obscured window

Bedroom 1 (3.05m x 3.66m)

12'04 X 10'10. Front aspect double-glazed window with views over fields, fitted carpet, GCH radiator

Bedroom 2 (2.74m x 3.35m)

11'04 X 9'02. Rear and side aspect double-glazed windows, fitted carpet, GCH radiator

Bathroom (1.52m x 2.44m)

8'02 X 5'04. Side-aspect obscured double-glazed window. 3-piece suite comprising bath, shower cubicle and wash basin, tiled floor, airing cupboard

WC (0.61m x 1.83m)

6'01 X 2'10. Side-aspect obscured window, two piece suite comprising low-level WC and wash basin

First Floor:

Bedroom 3 (3.66m x 5.18m)

17'05 X 12'04. Loft room suitable as bedroom or study. Velux windows offering views on 3 sides, fitted carpet, GCH radiator, walk-in cupboard with hanging rail. Please note that there is restricted ceiling height in this room

Rear Garden

To the side of the property is a large patio area suitable for outside dining/entertaining, further back is a newly-laid lawn area, garden shed and bedding area enclosed by a new fence offering a good degree of privacy

Council Tax & Services

Council Tax Band E - Tewkesbury Borough Council
Mains electricity, gas and water
Please note that the property has a septic tank
In addition to the rent the landlords are able to maintain the garden for an additional £50pcm

Admin Fee

A Referencing and Identity Check fee is payable. The cost for a single person is £150, a further £50 is added for each further adult that will occupy the property or guarantor

Rent

At the start of the tenancy the tenant will need to pay at least one month's rent in advance, plus a damage deposit equivalent to at least one-and-a-half month’s rent (more if there are pets at the property). A Tenancy Agreement and Inventory fee of £140 is also payable

Please Note

These particulars do not constitute an offer or contract. All statements in these particulars as to this property are made with no responsibility on the part of Cotswold Lettings or the lessors. No statements within these particulars are to be relied upon as statements of fact. All dimensions and/or references to necessary permission for use and occupation are given in good faith and intending lessees must satisfy themselves as to the correctness of all statements in these particulars. The lessors do not make or give, and neither does Cotswold Lettings, nor any person in their employ, and representation or warranty in relation to the property or particulars

Floor Plans

Property Location

Marketed by Cotswold Lettings & Management



By submitting this form, you accept our Terms of Use.

Disclaimer Property descriptions and related information displayed on this page are marketing materials provided by Cotswold Lettings & Management. estateagents365.uk does not warrant or accept any responsibility for the accuracy or completeness of the property descriptions or related information provided here and they do not constitute property particulars. Please contact Cotswold Lettings & Management for full details and further information.