Bungalow for sale in Halifax HX1, 2 Bedroom

Halifax, Halifax, UK

Quick Summary

Property Type:
Bungalow
Status:
For sale
Price
£ 100,000
Beds:
2
Baths:
1
Recepts:
1
County
West Yorkshire
Town
Halifax
Outcode
HX1
Location
Lynwood Crescent, Halifax HX1
Marketed By:
Reeds Rains
Posted
2024-04-14
HX1 Rating:





More Info?
Please contact Reeds Rains on 01422 298781 or Request Details

Property Description



This two bedroom dorma bungalow with attic room offers lots of space, a large drive for plenty of parking and a conservatory to the rear currently been used as the dining room. It is situated in a quite cul-de-sac set back from the road and briefly comprises of lounge, kitchen, conservatory/dining room, two double bedrooms, family bathroom and large attic room. With gas central heating and double glazed windows throughout. Outside there is a rear patio area and shed along with a large driveway to the front and path leading to the front door. EPC Rating E.

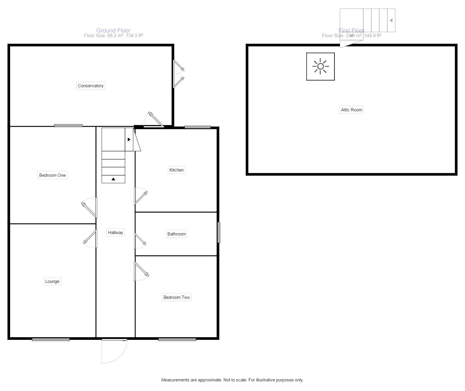
Hallway

Entrance door leads in to the hallway which is carpeted throughout and doors leading on to the lounge, kitchen, two bedrooms and family bathroom.

Lounge (3.66m x 4.24m)

Located at the front of the property with carpets throughout, gas fire and bay window.

Kitchen (2.87m x 2.84m)

Fully fitted with electric extractor hood, space for a washing machine, freestanding cooker and fridge/freezer. Door leading in to the conservatory/dining area and a further door leading up stairs to the attic room. Part tiled around work surfaces and gas point for freestanding cooker if needed.

Conservatory (4.60m x 3.12m)

This large conservatory is currently been used as the dining room but can also be used as a living space if you wish. With double glazed windows around and patio doors leading out on to the patio area.

Bedroom 1 (3.66m x 3.23m)

Double bedroom located to the rear of the property with carpets throughout.

Bedroom 2 (2.87m x 2.72m)

Carpeted throughout and situated at the front of the property.

Bathroom (2.87m x 1.52m)

White bathroom suite to include bath, electric shower over, WC and wash hand basin. Lino flooring and wall tiled throughout. Cupboard at the end of the bath for extra storage space.

Attic Room (7.62m x 3.40m)

The full size of the roof space, this additional room is perfect for extra space with stair case leading up from the kitchen. Carpeted throughout.

Outside

To the rear there is a slabbed patio with a shed for more storage. Gated access leading to the front of the property where there is plenty of space on the driveway to fit several cars along with a path leading up to the front door.

Important note to purchasers:

We endeavour to make our sales particulars accurate and reliable, however, they do not constitute or form part of an offer or any contract and none is to be relied upon as statements of representation or fact. Any services, systems and appliances listed in this specification have not been tested by us and no guarantee as to their operating ability or efficiency is given. All measurements have been taken as a guide to prospective buyers only, and are not precise. Please be advised that some of the particulars may be awaiting vendor approval. If you require clarification or further information on any points, please contact us, especially if you are traveling some distance to view. Fixtures and fittings other than those mentioned are to be agreed with the seller.

/8

Floor Plans

Property Location

Marketed by Reeds Rains



By submitting this form, you accept our Terms of Use.

Disclaimer Property descriptions and related information displayed on this page are marketing materials provided by Reeds Rains. estateagents365.uk does not warrant or accept any responsibility for the accuracy or completeness of the property descriptions or related information provided here and they do not constitute property particulars. Please contact Reeds Rains for full details and further information.