Bungalow for sale in Glasgow G77, 3 Bedroom

Glasgow, Glasgow, UK

Quick Summary

Property Type:
Bungalow
Status:
For sale
Price
£ 330,000
Beds:
3
Baths:
2
Recepts:
3
County
Glasgow
Town
Glasgow
Outcode
G77
Location
Poplar Avenue, Newton Mearns, East Renfrewshire G77
Marketed By:
Slater Hogg & Howison - Newton Mearns
Posted
2019-01-05
G77 Rating:





More Info?
Please contact Slater Hogg & Howison - Newton Mearns on 0141 376 8802 or Request Details

Property Description

Located at a favourable part of this highly sought after local address, this well presented and spacious 'John Lawrence' built detached bungalow provides ideal family living accommodation.
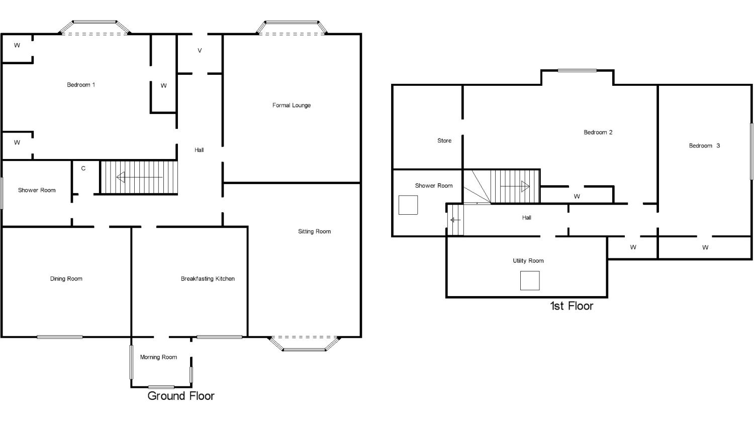
Comprises entrance vestibule, broad reception hallway, formal lounge, sitting room, dining room / bedroom four, breakfasting kitchen with adjoining morning room and a three piece shower room completes the ground floor accommodation,
Upstairs provides two double bedrooms with fitted wardrobes a further shower- room and a utility cupboard with velux window.
The home sits within well maintained gardens to the front and rear, with tended lawns and well stocked borders, with a large driveway, carport and single garage providing off street parking for several vehicles.
Newton Mearns offers catchment to preferred primary and secondary schooling, and is conveniently positioned for excellent motorway networks.
Local and high street shopping facilities are also within easy walking distance.


Floor Plans

Property Location

Marketed by Slater Hogg & Howison - Newton Mearns


By submitting this form, you accept our Terms of Use.

Disclaimer Property descriptions and related information displayed on this page are marketing materials provided by Slater Hogg & Howison - Newton Mearns. estateagents365.uk does not warrant or accept any responsibility for the accuracy or completeness of the property descriptions or related information provided here and they do not constitute property particulars. Please contact Slater Hogg & Howison - Newton Mearns for full details and further information.