Barn conversion for sale in Banbury OX17, 2 Bedroom

Banbury, Banbury, UK

Quick Summary

Property Type:
Barn conversion
Status:
For sale
Price
£ 415,000
Beds:
2
Baths:
2
Recepts:
3
County
Oxfordshire
Town
Banbury
Outcode
OX17
Location
College Fields, Aynho, Banbury, Northamptonshire OX17
Marketed By:
Fine & Country - Banbury
Posted
2024-04-01
OX17 Rating:





More Info?
Please contact Fine & Country - Banbury on 01295 590771 or Request Details

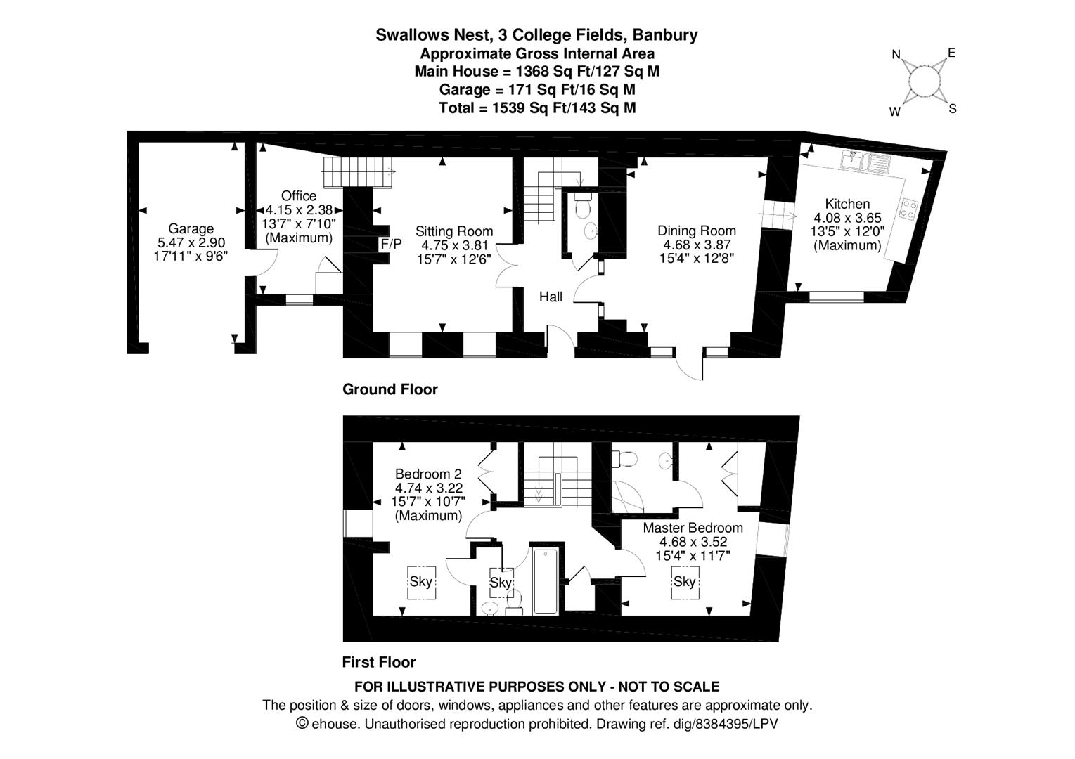
Property Description

A beautifully converted former farm building in a most sought after setting comprising entrance hall, cloakroom/WC, kitchen, study/boot room, dining room, sitting room, two bedrooms, master with en-suite, bathroom, courtyard style garden and additional visitor parking. EPC rating D.

Accommodation

A beautifully converted former farm building in a most exclusive development.

The property is perfectly tucked away at the end of the development which has a lovely community spirit.

Upon entering, the hallway has a door to the cloakroom/WC and stairs rising to the first floor.

The kitchen has a range of base and eye level units and space for appliances. There is an integrated oven, space for informal dining and a window overlooking the garden.

Steps lead to the dining room with windows that provide a good degree of natural light and a door opening out to the patio.

The sitting room has a large brick built fireplace with access to a study / boot room.

To the first floor, the master bedroom is of a good size and has fitted wardrobes and access to an en-suite shower room whilst the second bedroom, also with fitted wardrobes is also larger in size and has fitted wardrobes.

Completing the first floor is a well presented bathroom.

Outside, there is an enclosed front garden and a patio area that is ideal for al-fresco dining.

The property also benefits from a carport with storage above and additional visitor parking.

EPC rating D

Agents Notes

All measurements are approximate and quoted in metric with imperial equivalents and for general guidance only and whilst every attempt has been made to ensure accuracy, they must not be relied on. The fixtures, fittings and appliances referred to have not been tested and therefore no guarantee can be given and that they are in working order. Internal photographs are reproduced for general information and it must not be inferred that any item shown is included with the property. For a free valuation, contact the numbers listed on the brochure

Floor Plans

Property Location

Marketed by Fine & Country - Banbury


By submitting this form, you accept our Terms of Use.

Disclaimer Property descriptions and related information displayed on this page are marketing materials provided by Fine & Country - Banbury. estateagents365.uk does not warrant or accept any responsibility for the accuracy or completeness of the property descriptions or related information provided here and they do not constitute property particulars. Please contact Fine & Country - Banbury for full details and further information.